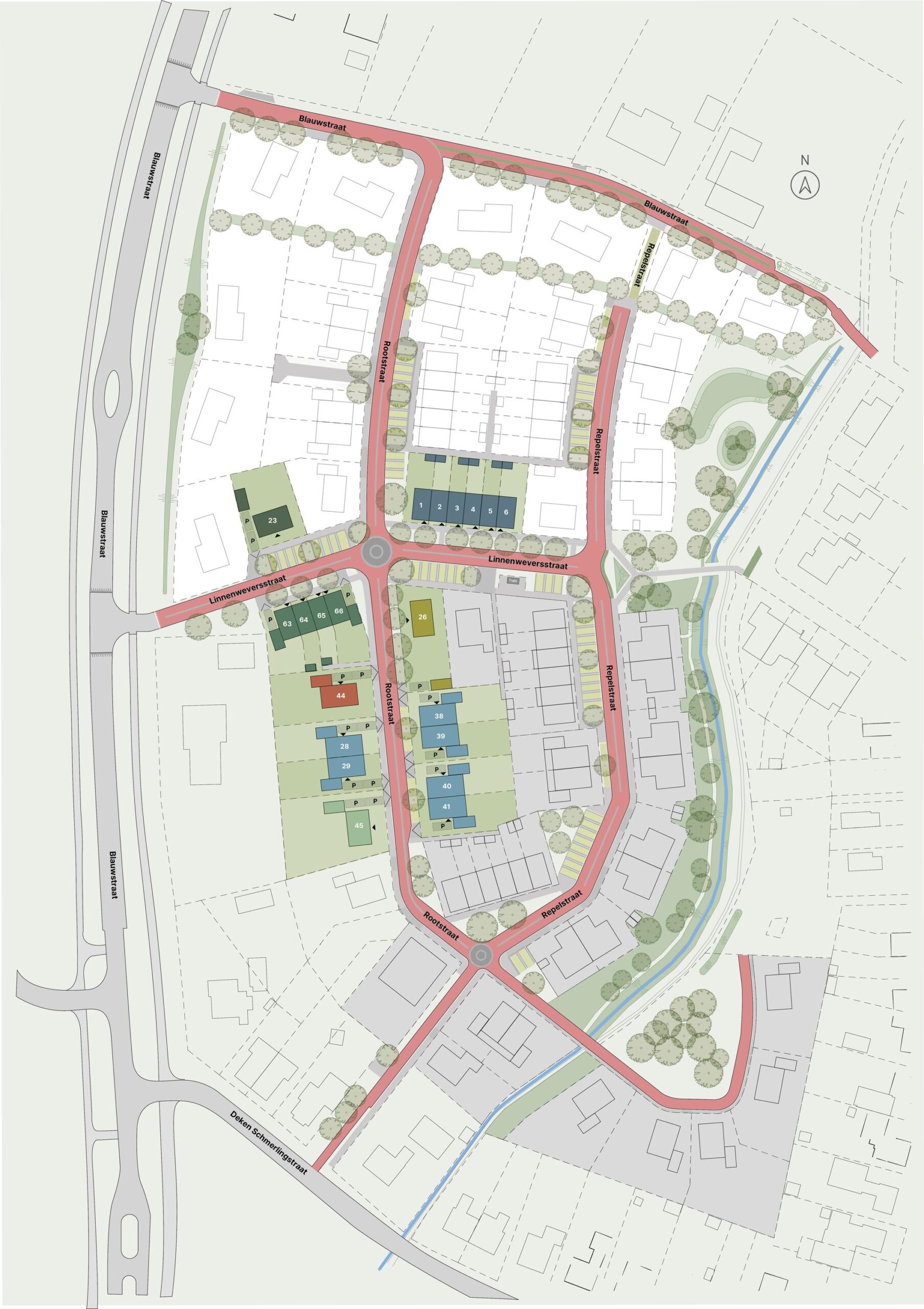
In fase 2 van De Blauwe Beek komt een rustiek woonblok met daarin vier rijwoningen, waarvan bouwnummer 63 en 66 de hoekwoningen vormen. Deze gezinswoningen zijn uitgevoerd in een warme bruine gevelsteen, met op de eerste verdieping verticale houtlookpanelen die de landelijke uitstraling versterken. De chique kaders rondom de voordeuren en het grote raam op de begane grond verrijken het gevelbeeld.
Begane grond
De keuken bevindt zich aan de straatzijde, terwijl de royale woonkamer aan de tuinzijde ligt. Dankzij de grote raampartij aan de achterzijde geniet je volop van de zonnige tuin op het zuidoosten. De entreehal is voorzien…
In fase 2 van De Blauwe Beek komt een rustiek woonblok met daarin vier rijwoningen, waarvan bouwnummer 63 en 66 de hoekwoningen vormen. Deze gezinswoningen zijn uitgevoerd in een warme bruine gevelsteen, met op de eerste verdieping verticale houtlookpanelen die de landelijke uitstraling versterken. De chique kaders rondom de voordeuren en het grote raam op de begane grond verrijken het gevelbeeld.
Begane grond
De keuken bevindt zich aan de straatzijde, terwijl de royale woonkamer aan de tuinzijde ligt. Dankzij de grote raampartij aan de achterzijde geniet je volop van de zonnige tuin op het zuidoosten. De entreehal is voorzien van een toilet, meterkast en ruimte voor een garderobe. In tegenstelling tot de tussenwoningen beschikken deze hoekwoningen over een aangebouwde berging, ideaal voor het stallen van fietsen en het opbergen van (tuin)gereedschap. De achtertuin is bereikbaar via het zijperceel. Parkeren kan op eigen terrein of in het openbare gebied, waar voldoende parkeergelegenheid beschikbaar is.
Eerste en tweede verdieping
De eerste verdieping biedt ruimte aan drie slaapkamers en een complete badkamer. De badkamer is in basis voorzien van een inloopdouche, een wastafel en een tweede toilet. In alle kamers geniet je van fijn daglicht dankzij de mooie raampartijen. De tweede verdieping is te gebruiken als extra bergruimte, werk-, sport- of speelruimte. Op deze verdieping tref je de opstelplaatsen voor de wasmachine. Ook zijn hier de technische installaties opgesteld, die je woning super comfortabel, duurzaam en energiezuinig maken.
* Er zijn diverse mogelijkheden om deze woning geheel naar jouw wens aan te passen met bijvoorbeeld een uitbouw van de begane grond, gewijzigde binnendeuren of de zolderindeling aanpassen. Bij de start verkoop is de volledige koperskeuzelijst beschikbaar onder het kopje downloads.
* Plattegronden zoals verbeeld kunnen afwijken van de specifieke bouwnummers in bijvoorbeeld oprit, tuin of raampartijen. Bij de start verkoop zijn de verkooptekeningen met specifieke plattegronden van het betreffende bouwnummer beschikbaar.
Toon meer
Toon minder