In fase 2 van De Blauwe Beek komt een rustiek woonblok met daarin vier rijwoningen, waarvan bouwnummer 64 en 65 de tussenwoningen vormen. Deze gezinswoningen zijn uitgevoerd in een warme bruine gevelsteen, met op de eerste verdieping verticale houtlookpanelen die de landelijke uitstraling versterken.
Begane grond
De keuken ligt aan de straatzijde, terwijl de ruime woonkamer grenst aan de zonnige tuin op het zuidoosten. Grote ramen zorgen voor een lichte en open sfeer. De entreehal met toilet en meterkast biedt voldoende ruimte voor een garderobe. Achter in de tuin bevindt zich een houten berging, ideaal voor het opbergen van…
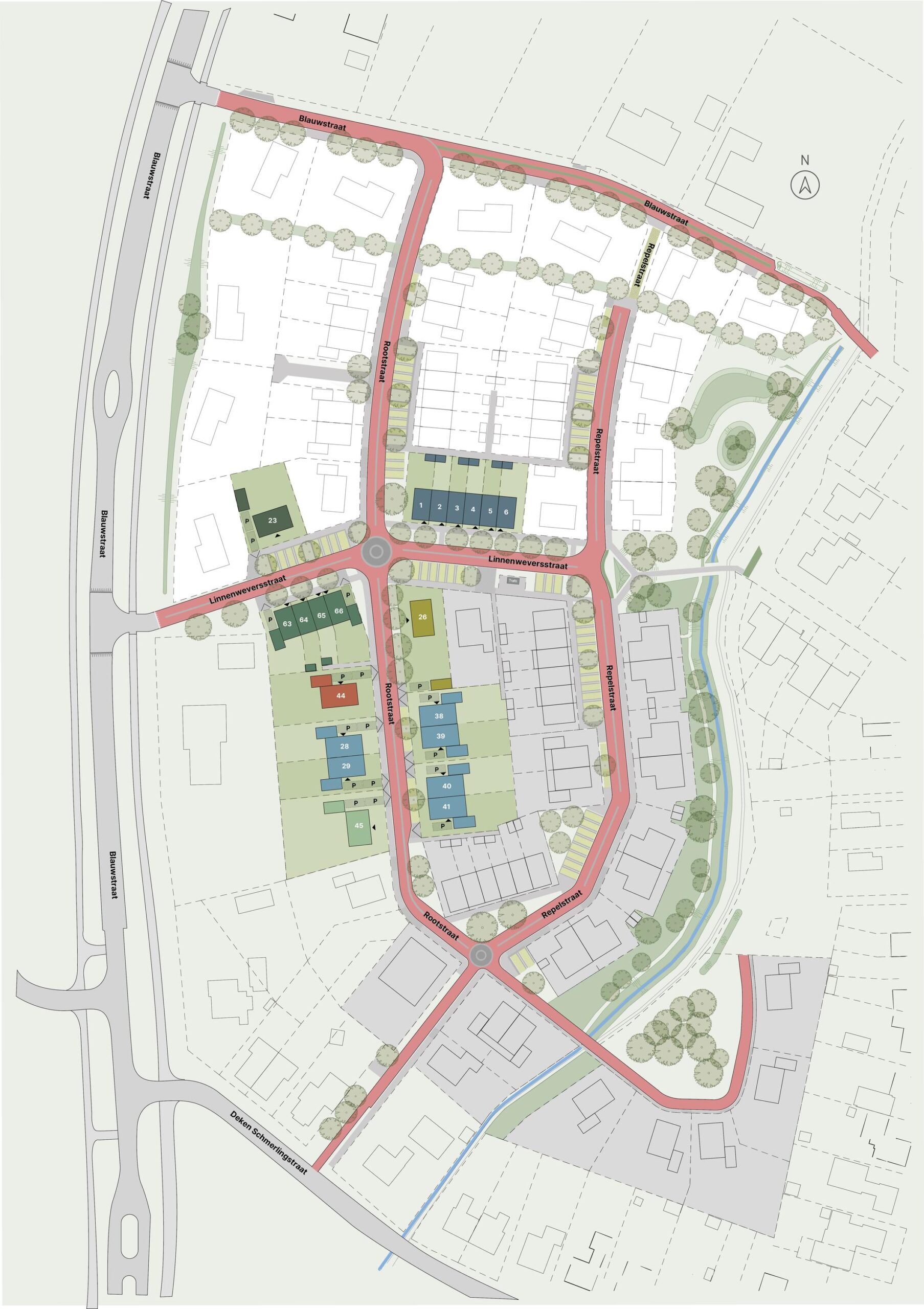
In fase 2 van De Blauwe Beek komt een rustiek woonblok met daarin vier rijwoningen, waarvan bouwnummer 64 en 65 de tussenwoningen vormen. Deze gezinswoningen zijn uitgevoerd in een warme bruine gevelsteen, met op de eerste verdieping verticale houtlookpanelen die de landelijke uitstraling versterken.
Begane grond
De keuken ligt aan de straatzijde, terwijl de ruime woonkamer grenst aan de zonnige tuin op het zuidoosten. Grote ramen zorgen voor een lichte en open sfeer. De entreehal met toilet en meterkast biedt voldoende ruimte voor een garderobe. Achter in de tuin bevindt zich een houten berging, ideaal voor het opbergen van fietsen en (tuin)gereedschap. De tuin is toegankelijk via het achterpad. Parkeren kan in het openbaar gebied, waar voldoende parkeerplaatsen beschikbaar zijn.
Eerste en tweede verdieping
De eerste verdieping biedt ruimte aan twee slaapkamers en een complete badkamer. De badkamer is in basis voorzien van een inloopdouche, een wastafel en een tweede toilet. In alle kamers geniet je van fijn daglicht dankzij de mooie raampartijen. De tweede verdieping is te gebruiken als extra bergruimte, werk-, sport- of speelruimte. Op deze verdieping tref je de opstelplaatsen voor de wasmachine. Ook zijn hier de technische installaties opgesteld, die je woning super comfortabel, duurzaam en energiezuinig maken.
* Er zijn diverse mogelijkheden om deze woning geheel naar jouw wens aan te passen met bijvoorbeeld gewijzigde binnendeuren of de zolderindeling aanpassen. Bij de start verkoop is de volledige koperskeuzelijst beschikbaar onder het kopje downloads.
* Plattegronden zoals verbeeld kunnen afwijken van de specifieke bouwnummers in bijvoorbeeld oprit, tuin of raampartijen. Bij de start verkoop zijn de verkooptekeningen met specifieke plattegronden van het betreffende bouwnummer beschikbaar.
Toon meer
Toon minder