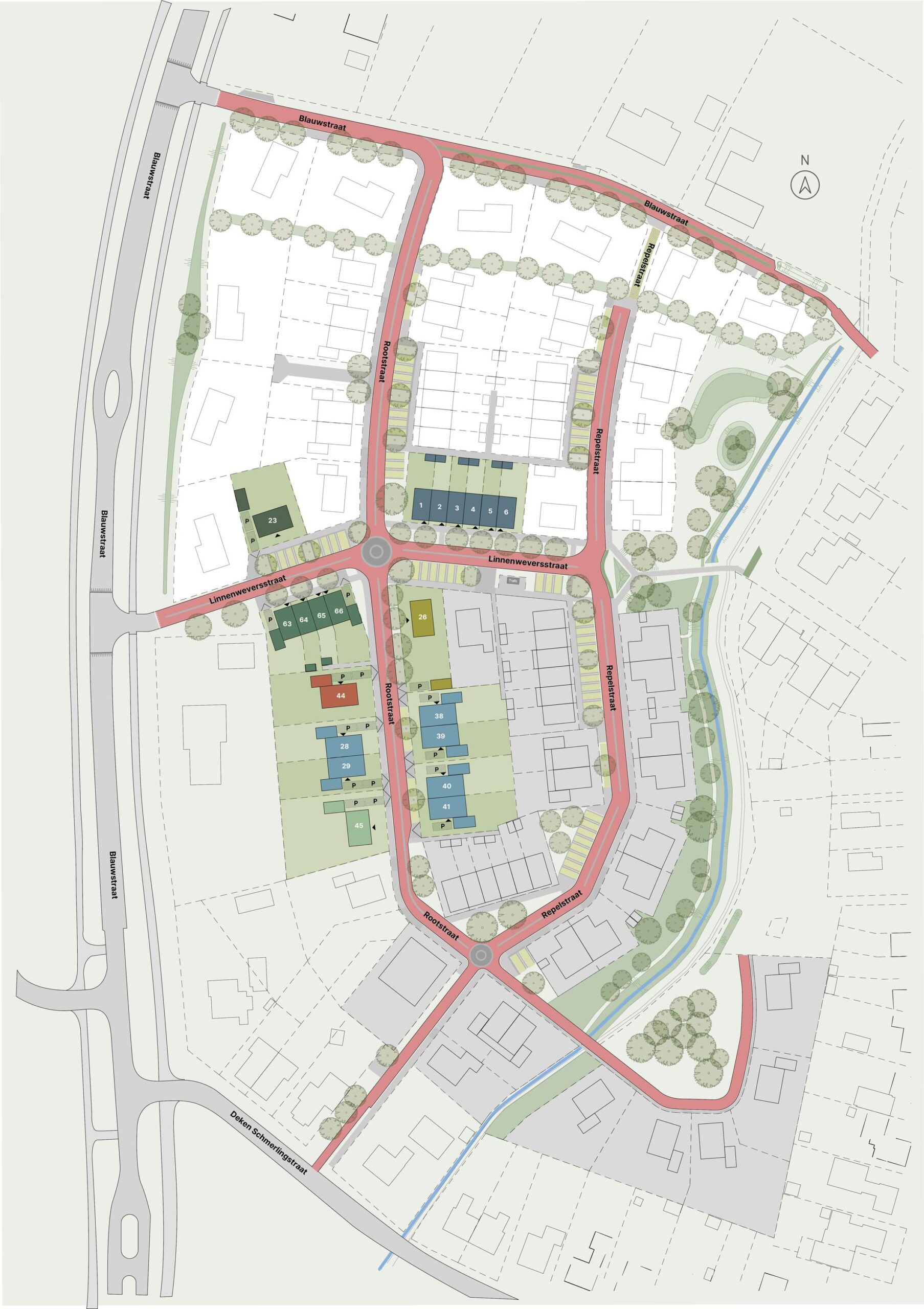
Geclusterd in één straat worden zes ruime twee-onder-één-kapwoningen gerealiseerd. Deze woningen combineren het comfort van een vrijstaande woning met de efficiëntie van een gedeelde bouwvolume. Elk woningpaar krijgt een eigen uitstraling dankzij de variatie in gevelstenen: van stijlvol grijs-wit (bouwnummer 28 & 29), tot warm rood gemêleerd (38 & 39) en klassiek bruin gemêleerd (40 & 41). De gemetselde bergingen aan de voorzijde zijn afgewerkt met onderhoudsvrije houtlook bekleding, wat bijdraagt aan de landelijke sfeer. Witte kaders rond de ramen en afwisselende rollagen zorgen voor een gevarieerd straatbeeld waarin elke woning zijn eigen karakter heeft.
Begane grond
De woonkamer…
Geclusterd in één straat worden zes ruime twee-onder-één-kapwoningen gerealiseerd. Deze woningen combineren het comfort van een vrijstaande woning met de efficiëntie van een gedeelde bouwvolume. Elk woningpaar krijgt een eigen uitstraling dankzij de variatie in gevelstenen: van stijlvol grijs-wit (bouwnummer 28 & 29), tot warm rood gemêleerd (38 & 39) en klassiek bruin gemêleerd (40 & 41). De gemetselde bergingen aan de voorzijde zijn afgewerkt met onderhoudsvrije houtlook bekleding, wat bijdraagt aan de landelijke sfeer. Witte kaders rond de ramen en afwisselende rollagen zorgen voor een gevarieerd straatbeeld waarin elke woning zijn eigen karakter heeft.
Begane grond
De woonkamer bevindt zich aan de straatzijde en biedt een prettige, lichte leefruimte. Aan de tuinzijde ligt de leefkeuken, met uitzicht op de zonnige achtertuin. De entreehal is voorzien van een toilet, meterkast en ruimte voor garderobe. De aangebouwde berging maakt deze woonlaag compleet en biedt volop ruimte voor fietsen en (tuin)gereedschap. In tegenstelling tot de vrijstaande woningen deel je hier één bouwvolume met je buren, maar geniet je wel van een eigen oprit en veel privacy.
Eerste en tweede verdieping
De eerste verdieping biedt ruimte aan drie slaapkamers, een complete badkamer en een separaat tweede toilet. De badkamer is in basis voorzien van een douche en een wastafel. De hoofdslaapkamer strekt zich uit over de volledige breedte van de woning. In alle slaapkamers geniet je van fijn daglicht dankzij de mooie raampartijen. De tweede verdieping is te gebruiken als extra bergruimte, werk-, sport- of speelruimte. Op deze verdieping tref je de opstelplaatsen voor de wasmachine. Ook zijn hier de technische installaties opgesteld, die je woning super comfortabel, duurzaam en energiezuinig maken.
* Er zijn diverse mogelijkheden om deze woning geheel naar jouw wens aan te passen met bijvoorbeeld een uitbouw van de begane grond, gewijzigde binnendeuren en het vergroten van de badkamer. Bij de start verkoop is de volledige koperskeuzelijst beschikbaar onder het kopje downloads.
* Plattegronden zoals verbeeld kunnen afwijken van de specifieke bouwnummers in bijvoorbeeld oprit, tuin of raampartijen. Bij de start verkoop zijn de verkooptekeningen met specifieke plattegronden van het betreffende bouwnummer beschikbaar.
Toon meer
Toon minder