Welke woningtypes zijn mogelijk?
Woningtype Albatros
- Vrijstaande woning
- Inhoud ca. 728 m³
- Gebruiksoppervlakte ca. 163 m² (exclusief berging)
- Royale woonkamer en keuken met uitzicht op achter- zij- en voortuin.
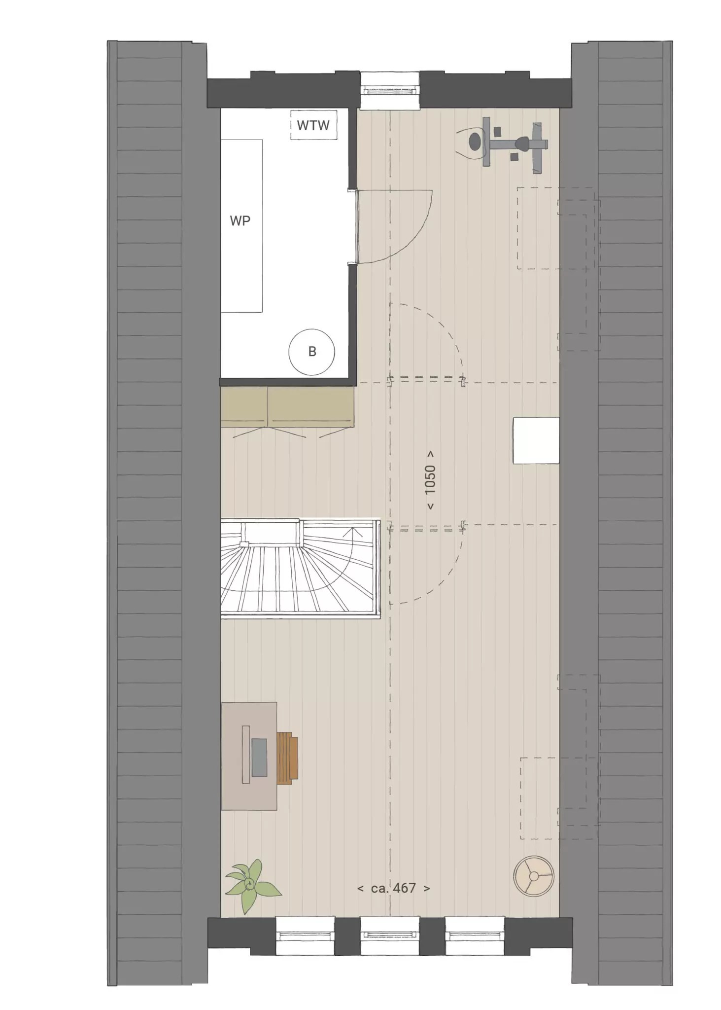
- 3 slaapkamers en complete badkamer op de 1e verdieping.
- Energielabel A++++
- Optioneel extra slaapkamer(s) op de 2e verdieping.
V.o.n.-prijs architectuurstijlen modern/ eigentijds/ klassiek: € 735.500,-.
Woningtype Rietgans
- Levensloopbestendige woning
- Inhoud ca. 602 m³
- Gebruiksoppervlakte ca. 143 m²
- Compleet woonprogramma op begane grond: woonkamer, keuken, slaapkamer en badkamer.
-…
Welke woningtypes zijn mogelijk?
Woningtype Albatros
- Vrijstaande woning
- Inhoud ca. 728 m³
- Gebruiksoppervlakte ca. 163 m² (exclusief berging)
- Royale woonkamer en keuken met uitzicht op achter- zij- en voortuin.
- 3 slaapkamers en complete badkamer op de 1e verdieping.
- Energielabel A++++
- Optioneel extra slaapkamer(s) op de 2e verdieping.
V.o.n.-prijs architectuurstijlen modern/ eigentijds/ klassiek: € 735.500,-.
Woningtype Rietgans
- Levensloopbestendige woning
- Inhoud ca. 602 m³
- Gebruiksoppervlakte ca. 143 m²
- Compleet woonprogramma op begane grond: woonkamer, keuken, slaapkamer en badkamer.
- Energielabel A++++
- Optioneel extra slaapkamer(s) en badkamer op de 1e verdieping.
V.o.n.-prijs architectuurstijlen modern/ eigentijds/ klassiek: € 690.000,-.
Toon meer
Toon minder