Kenmerken

  • Vraagprijs € 525.000,- k.k.
  • Status In verkoop
  • Aanvaarding In overleg
  • Bouwjaar 1901
  • Soort woning Woonboerderij
  • Eigendom Volle eigendom
  • Type woning Vrijstaande woning
  • Type Woonhuis
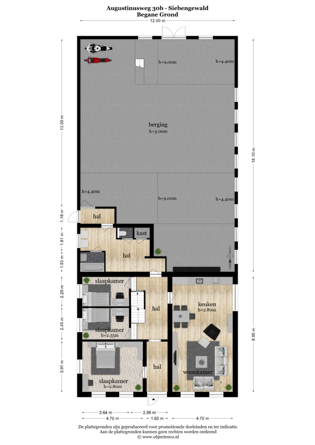
  • Aantal kamers 7
  • Aantal slaapkamers 4
  • Aantal badkamers 1
  • Badkamer voorzieningen Ligbad, wastafel
  • Isolatie Dakisolatie, dubbel glas
  • Soort Verwarming Cv ketel
  • Ketel bouwjaar 2023
  • Energielabel F
  • Woonoppervlakte 179 m2
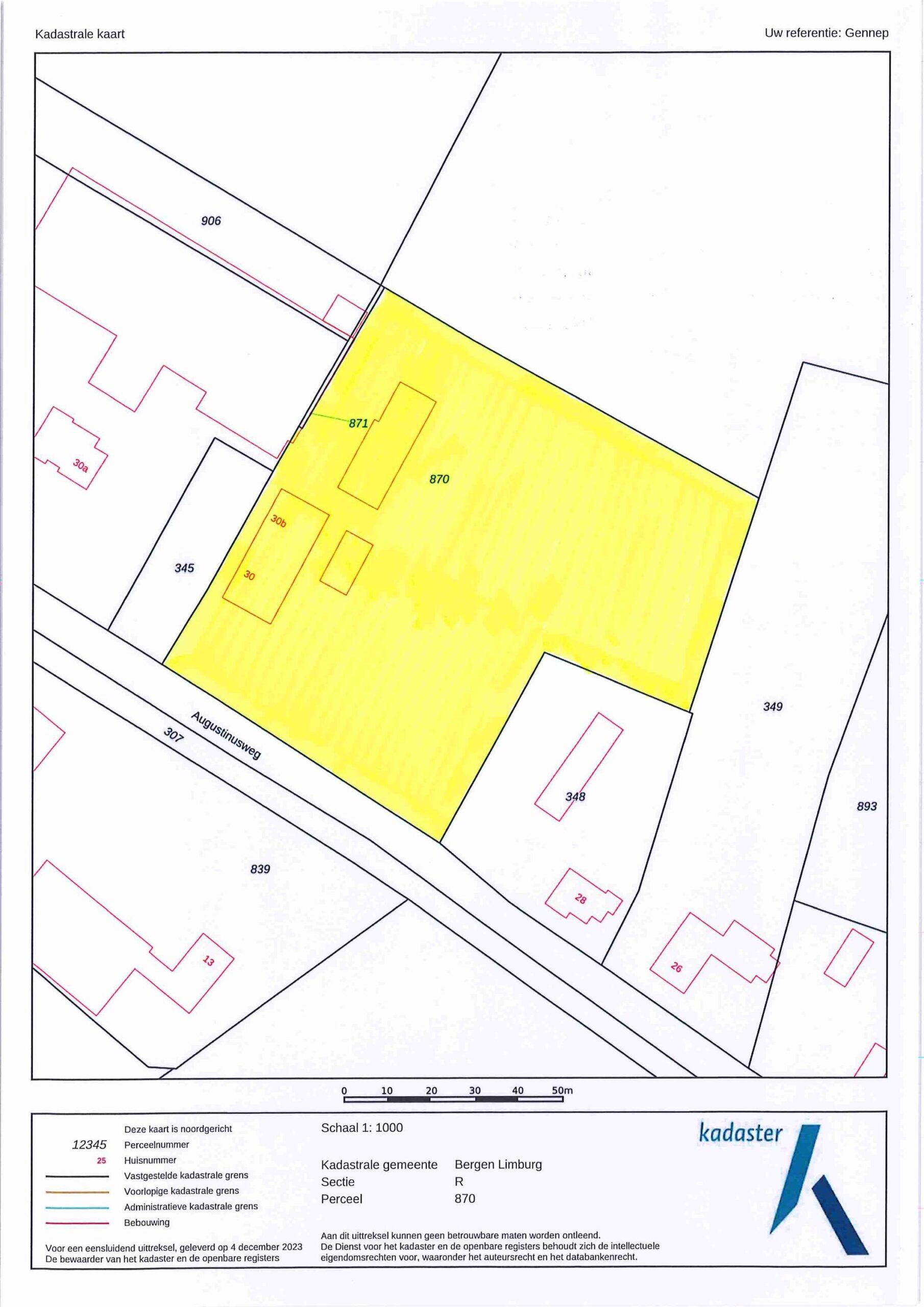
  • Oppervlakte 9.014 m2
  • Ligging Aan rustige weg, vrij uitzicht, open ligging, buiten bebouwde kom, in bosrijke omgeving, landelijk gelegen
  • Kadastrale gemeente Bergen limburg
  • Tuin type(n) Achtertuin
  • Hoofdtuin oppervlakte 760 m2
  • Ligging hoofdtuin Zuidwest
  • Parkeerfaciliteit Openbaar parkeren, op eigen terrein
Toon meer Toon minder

Plattegronden

28 items
Twan Poels : Benieuwd naar de waarde van jouw woning? Neem dan gerust contact met ons op.

Omgeving

    Meer informatie?

    Twan Poels

    Directeur en eigenaar Gennep en Cuijk & NVM makelaar

    Neem contact op

    Buitenstate specialist

    Dé specialist in landelijk wonen in Noord-Oost Brabant en Noord-Limburg.

    contact

    Jouw woonwensen en mogelijkheden bespreken?

    Neem contact op

    Direct reageren

    Vul het contactformulier in, dan bellen we je binnenkort terug.

    This field is for validation purposes and should be left unchanged.

    Welke cookies zijn er?

    We onderscheiden verschillende soorten cookies.

    Functionele cookies

    We onderscheiden verschillende soorten cookies.

    Analytische cookies

    We onderscheiden verschillende soorten cookies.

    Tracking cookies

    We onderscheiden verschillende soorten cookies.

    Social media plug-in cookies

    We onderscheiden verschillende soorten cookies.