Er is een mogelijkheid om een gedeelte van het achterliggende perceel (groen gearceerd) van ca. 100 m² bij te kopen.
Op een rustige woonlocatie en op loopafstand van de dorpsvoorzieningen gelegen, goed onderhouden vrijstaande woning met ruime en lichte woonvertrekken, op zowel de begane grond als 1e verdieping.
Indeling:
Begane grond: hal met meterkast, verdiepte kelderkast en toilet met fonteintje. Een ruime en lichte woonkamer met gashaard en aansluitend de keuken en aangebouwde bijkeuken met o.a. een schuifkastenwand en de aansluitingen t.b.v. de wasapparatuur.
1e verdieping: overloop, zeer ruime ouderslaapkamer (voorheen 2 kamers), 2 slaapkamers waarvan een…
Er is een mogelijkheid om een gedeelte van het achterliggende perceel (groen gearceerd) van ca. 100 m² bij te kopen.
Op een rustige woonlocatie en op loopafstand van de dorpsvoorzieningen gelegen, goed onderhouden vrijstaande woning met ruime en lichte woonvertrekken, op zowel de begane grond als 1e verdieping.
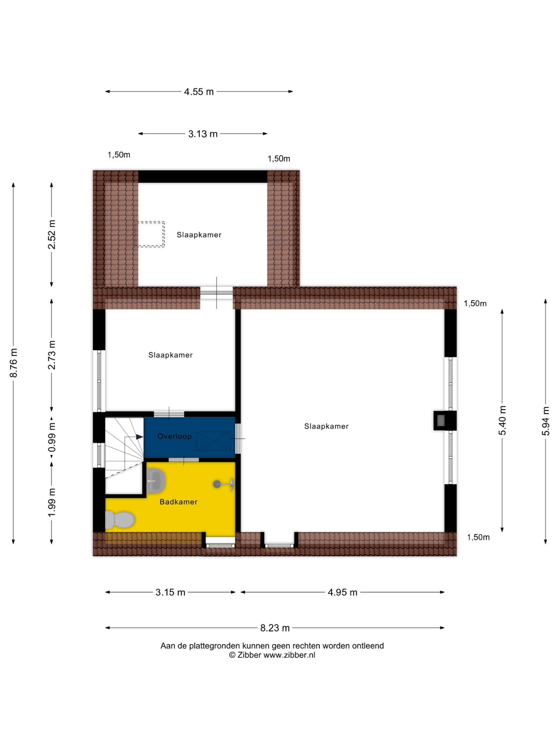
Indeling:
Begane grond: hal met meterkast, verdiepte kelderkast en toilet met fonteintje. Een ruime en lichte woonkamer met gashaard en aansluitend de keuken en aangebouwde bijkeuken met o.a. een schuifkastenwand en de aansluitingen t.b.v. de wasapparatuur.
1e verdieping: overloop, zeer ruime ouderslaapkamer (voorheen 2 kamers), 2 slaapkamers waarvan een momenteel in gebruik is als werkkamer. Het is relatief eenvoudig om op de 1e verdieping weer 4 slaapkamers te realiseren. Badkamer voorzien van douche, toilet en vaste wastafel.
Diverse gegevens:
De keukenopstelling is voorzien van een 4-pits gaskookplaat, afzuigkap, combioven en koelkast.
De cv-ketel is van het merk Nefit, bouwjaar 2001.
De woning is grotendeels voorzien van kunststof kozijnen en dubbel glas met rolluiken.
Er is een mogelijkheid om een gedeelte van het achterliggende perceel (groen gearceerd) van ca. 100 m² bij te kopen.
Oploo is voorzien van een supermarkt, een basisschool, een actief verenigingsleven en een gemeenschapshuis. Voor de overige voorzieningen kun je terecht in Sint Anthonis of Boxmeer. Via de nabijgelegen autosnelweg A73 zijn zowel Nijmegen als Venlo in ca. 30 minuten bereikbaar.
Belangrijkste vaste lasten:
(volgens opgave huidige gebruiker)
Onroerendezaakbelasting: € 304,50 per jaar
Rioolrecht: € 197,40 per jaar
Afvalstoffenheffing: € 261,00 per jaar
Waterschapslasten: € 231,00 per jaar
Toon meer
Toon minder