Op een zeer fraaie en landelijke locatie gelegen, in uitstekende staat verkerende, ultramoderne slimme villa voorzien van vele extra's, zoals bijvoorbeeld een beveiligingssysteem! De villa is zelfs te gebruiken voor dubbele bewoning en op loopafstand liggen de Staatsbossen van Sint Anthonis.
Indeling:
Souterrain: in het souterrain bevindt zich de wellnessruimte. Hier is alle ruimte om heerlijk te ontspannen; er is een sauna, een relaxruimte/ slaapkamer, een luxe badkamer met inloopdouche en vaste wastafel, separaat toilet en via de openslaande deuren kom je bij de jacuzzi. Verder bevindt zich op deze verdieping de technische ruimte met de daarbij behorende…
Op een zeer fraaie en landelijke locatie gelegen, in uitstekende staat verkerende, ultramoderne slimme villa voorzien van vele extra's, zoals bijvoorbeeld een beveiligingssysteem! De villa is zelfs te gebruiken voor dubbele bewoning en op loopafstand liggen de Staatsbossen van Sint Anthonis.
Indeling:
Souterrain: in het souterrain bevindt zich de wellnessruimte. Hier is alle ruimte om heerlijk te ontspannen; er is een sauna, een relaxruimte/ slaapkamer, een luxe badkamer met inloopdouche en vaste wastafel, separaat toilet en via de openslaande deuren kom je bij de jacuzzi. Verder bevindt zich op deze verdieping de technische ruimte met de daarbij behorende apparatuur en een grote bergruimte.
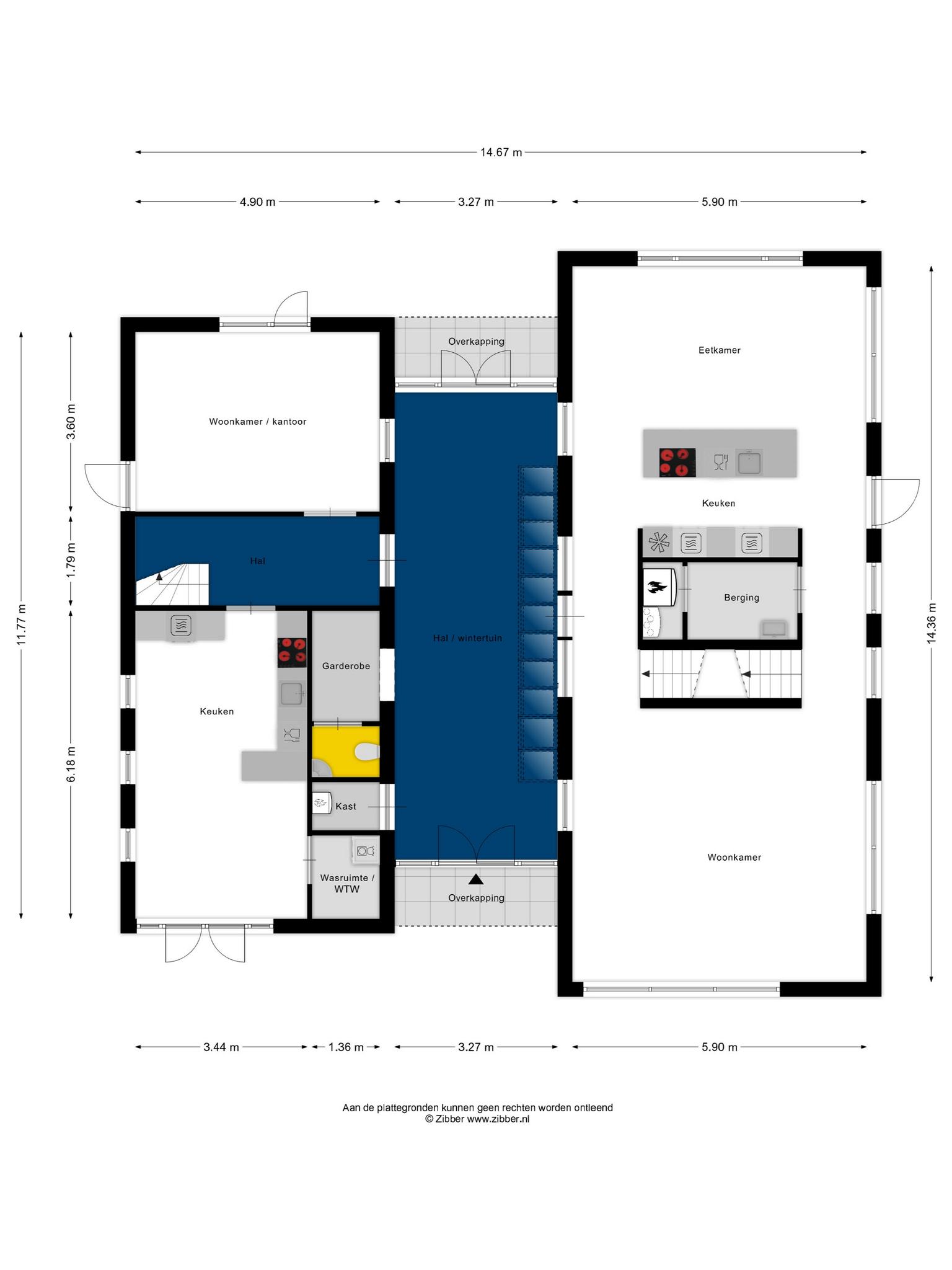
Begane grond: ruime hal/ wintertuin met aan de rechterzijde (hoofdverblijf) de woonkamer met speelse vide en royale woonkeuken met extra bergruimte. Aan de linkerzijde (gastenverblijf) een tussenhal met trappenhuis, slaap-/ werkkamer en keuken met leefruimte. Tevens is er nog een wasruimte en een separaat toilet.
1e verdieping: hier bevinden zich verdeeld over twee bouwdelen in totaal een drietal slaapkamers, twee luxe badkamers, een separaat toilet en een riante overloop met werkruimte. Eén badkamer is uitgerust met een inloopdouche, wastafel en toilet. De 2e badkamer is uitgerust met een dubbele wastafel en douche-/ stoomcabine en apart toilet.
Diverse gegevens:
Deze bijzonder vormgegeven villa is gebouwd in 2010 en luxe afgewerkt. De architect heeft met zorg de diverse zichtlijnen vastgesteld en de indeling gerealiseerd; de ontvangsthal is licht, voorzien van veel glaspartijen en geeft een ruimtelijk zicht over de woning.
De villa is volledig geïsoleerd, voorzien van vloerverwarming/ -koeling en uitgerust met een aardwarmtepomp met externe koeling, een tweetal warmteterugwinsystemen met externe koelingswisselaar, gestuurd door domotica en elektrische screens.
In de technische ruimte bevindt zich het centrale stofzuigersysteem, de boiler en de warmtepomp. De woning kan ook in de zomer gekoeld worden.
In de leefkeuken kan men genieten van het uitzicht over de tuin, de complete keukeninrichting is uitgerust met Miele apparatuur.
De tuin rondom de woning is verzorgd aangelegd en voorzien van automatische beregening. Vanuit de tuin is er een vrij uitzicht over de omgeving.
Achter de woning kan de auto onder de carport worden geparkeerd, voor de villa zijn 3 parkeerplaatsen aanwezig. Ook is er extra bergruimte beschikbaar in de aangrenzende berging.
Belangrijkste vaste lasten:
(volgens opgave huidige gebruiker)
Onroerende zaakbelasting: € 950,58 per jaar
Rioolrecht: € 241,92 per jaar
Afvalstoffenheffing: € 213,96 per jaar
Waterschapslasten: € 515,00 per jaar
Toon meer
Toon minder