Op een zeer rustige en kindvriendelijke woonlocatie gelegen geschakelde en over de gehele achterzijde uitgebouwde twee-onder-een-kapwoning met een inpandig te bereiken garage. Deze uitstekend geïsoleerde (energielabel A+) en modern ingerichte woning biedt volop woonruimte en woongenot. Met een kindvriendelijke woonomgeving en op loopafstand van o.a. de basisschool en supermarkt is dit de ideale gezinswoning.
Indeling:
Begane grond: hal met meterkast en toilet met wandcloset en fonteintje. Een royaal aan de achterzijde uitgebouwde woonkamer met openslaande deuren naar de achtertuin. De halfopen keuken met kookeiland en luxe keukeninrichting is aan de voorzijde van de woning gesitueerd.
1e verdieping: overloop,…
Op een zeer rustige en kindvriendelijke woonlocatie gelegen geschakelde en over de gehele achterzijde uitgebouwde twee-onder-een-kapwoning met een inpandig te bereiken garage. Deze uitstekend geïsoleerde (energielabel A+) en modern ingerichte woning biedt volop woonruimte en woongenot. Met een kindvriendelijke woonomgeving en op loopafstand van o.a. de basisschool en supermarkt is dit de ideale gezinswoning.
Indeling:
Begane grond: hal met meterkast en toilet met wandcloset en fonteintje. Een royaal aan de achterzijde uitgebouwde woonkamer met openslaande deuren naar de achtertuin. De halfopen keuken met kookeiland en luxe keukeninrichting is aan de voorzijde van de woning gesitueerd.
1e verdieping: overloop, 3 slaapkamers, een luxe ingerichte badkamer voorzien van een inloopdouche, wandcloset, wastafel en designradiator.
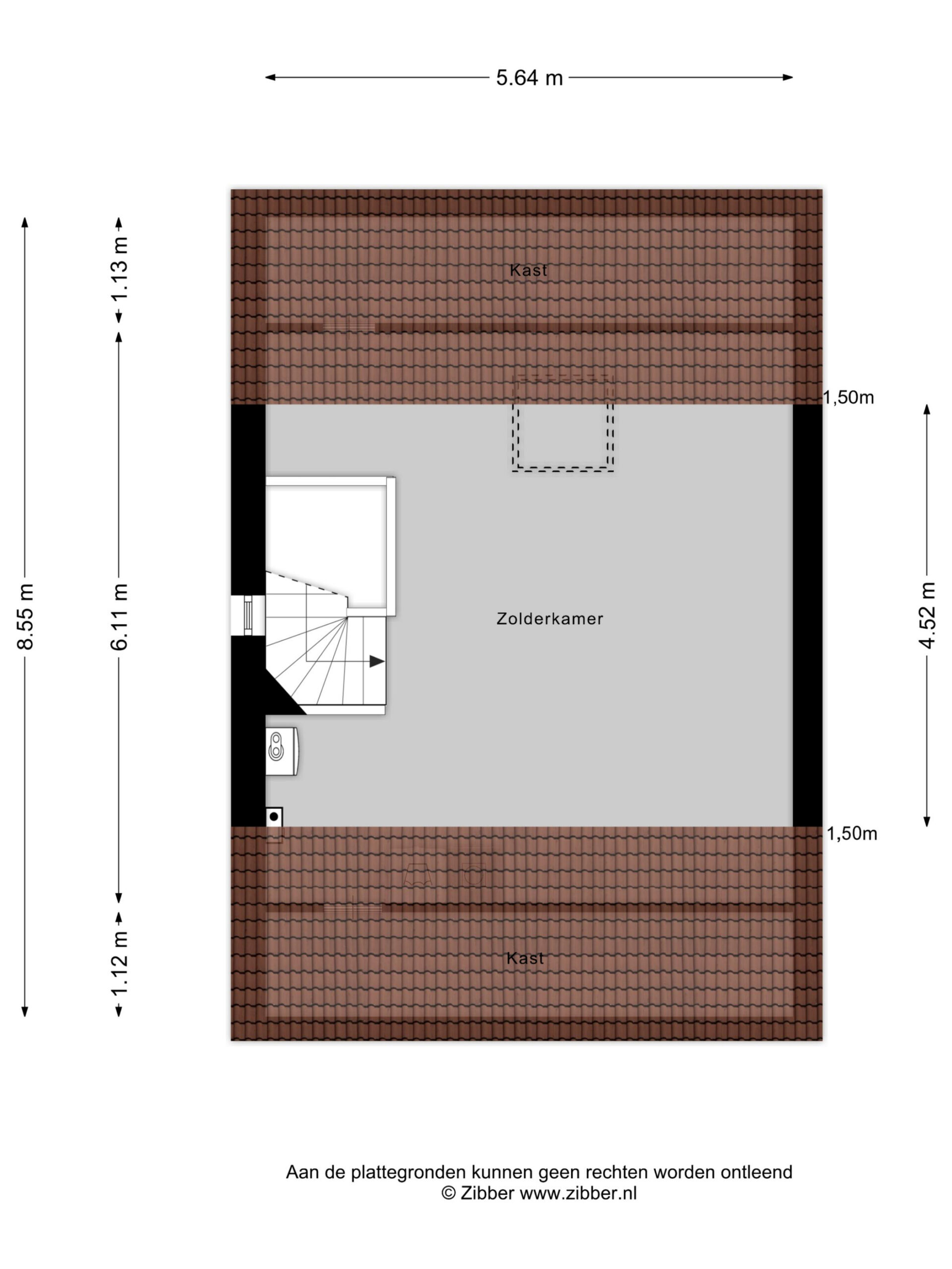
2e verdieping: via een vaste trap bereikbare zolderverdieping met de opstelling van de cv-ketel en de aansluitingen t.b.v. het witgoed. Deze riante zolderverdieping biedt nog voldoende inrichtingsmogelijkheden met 4e slaapkamer of werkkamer.
Diverse gegevens:
De luxe en compleet ingerichte keuken is voorzien van een kookeiland met inductiekookplaat, afzuigkap, oven, combioven, vaatwasser en Quooker.
Uitstekend geïsoleerde en energiezuinige woning met energielabel A+.
Er zijn 6 zonnepanelen aanwezig.
Riant uitgebouwd over de gehele achterzijde en de garage is inpandig bereikbaar.
Op de eigen oprit kunnen er 2 auto's en er is voldoende openbare parkeergelegenheid.
Gelegen op loopafstand van een speelweide, basisschool en een supermarkt.
De autosnelweg A73 richting Nijmegen-Venlo is uitstekend bereikbaar en op slechts enkele autominuten gelegen.
Belangrijkste vaste lasten:
(volgens opgave huidige gebruiker)
Onroerendezaakbelasting: € 476,38 per jaar
Rioolrecht: € 262,44 per jaar
Afvalstoffenheffing: € 261,00 per jaar
Waterschapslasten: € 402,67 per jaar
Toon meer
Toon minder