Op een rustige en gewilde locatie in Beers staat deze goed onderhouden, moderne en instapklare twee-onder-een-kapwoning met vrijstaande berging. De woning is aan de achterzijde uitgebouwd en beschikt over maar liefst vier slaapkamers, waardoor het huis uitermate geschikt is voor gezinnen of voor wie op zoek is naar extra ruimte voor werk of hobby. Op korte afstand gelegen van "De Kraaijenbergse Plassen" en Cuijk met alle dagelijkse voorzieningen.
Indeling:
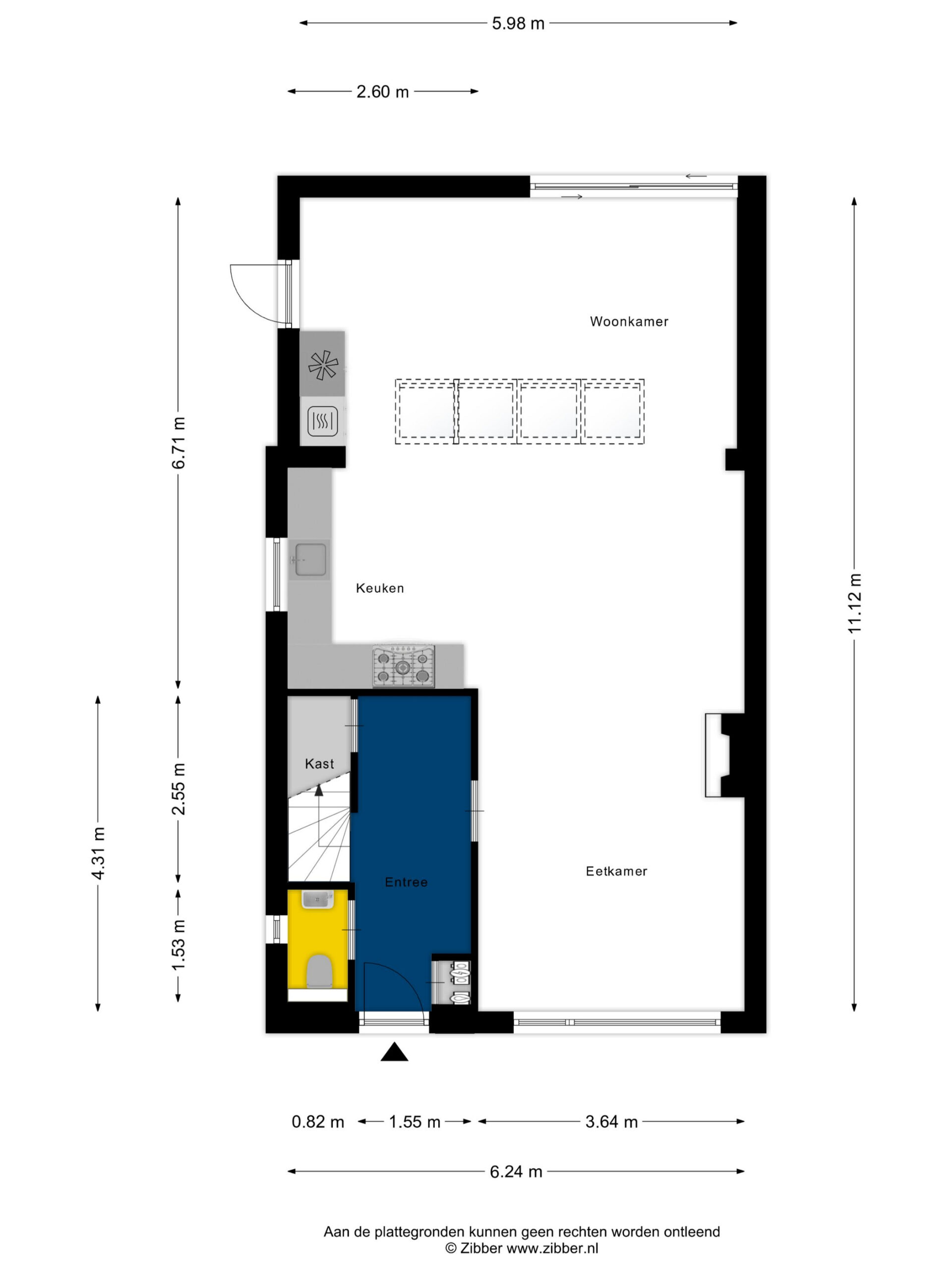
Begane grond: hal met meterkast en toiletruimte, een uitgebouwde eet-/ woonkamer met veel lichtinval, o.a. door de lichtstraat, een gashaard en aan de achterzijde de schuifpui naar de onderhoudsvriendelijke…
Op een rustige en gewilde locatie in Beers staat deze goed onderhouden, moderne en instapklare twee-onder-een-kapwoning met vrijstaande berging. De woning is aan de achterzijde uitgebouwd en beschikt over maar liefst vier slaapkamers, waardoor het huis uitermate geschikt is voor gezinnen of voor wie op zoek is naar extra ruimte voor werk of hobby. Op korte afstand gelegen van "De Kraaijenbergse Plassen" en Cuijk met alle dagelijkse voorzieningen.
Indeling:
Begane grond: hal met meterkast en toiletruimte, een uitgebouwde eet-/ woonkamer met veel lichtinval, o.a. door de lichtstraat, een gashaard en aan de achterzijde de schuifpui naar de onderhoudsvriendelijke achtertuin, een moderne keuken voorzien van diverse inbouwapparatuur.
1e verdieping: overloop, 3 slaapkamers, een moderne badkamer voorzien van inloopdouche, wandcloset en wastafel met meubel.
2e verdieping: middels vaste trap te bereiken voorzolder met de cv-opstelling en de witgoedaansluitingen, 4e slaapkamer met Velux-dakraam.
Diverse gegevens:
De keukeninrichting bestaat uit een 5-pits gasfornuis met oven, afzuigkap, vaatwasser, combioven, koelkast en spoelbak.
De woning is volledig geïsoleerd.
De woning beschikt grotendeels over vloerverwarming.
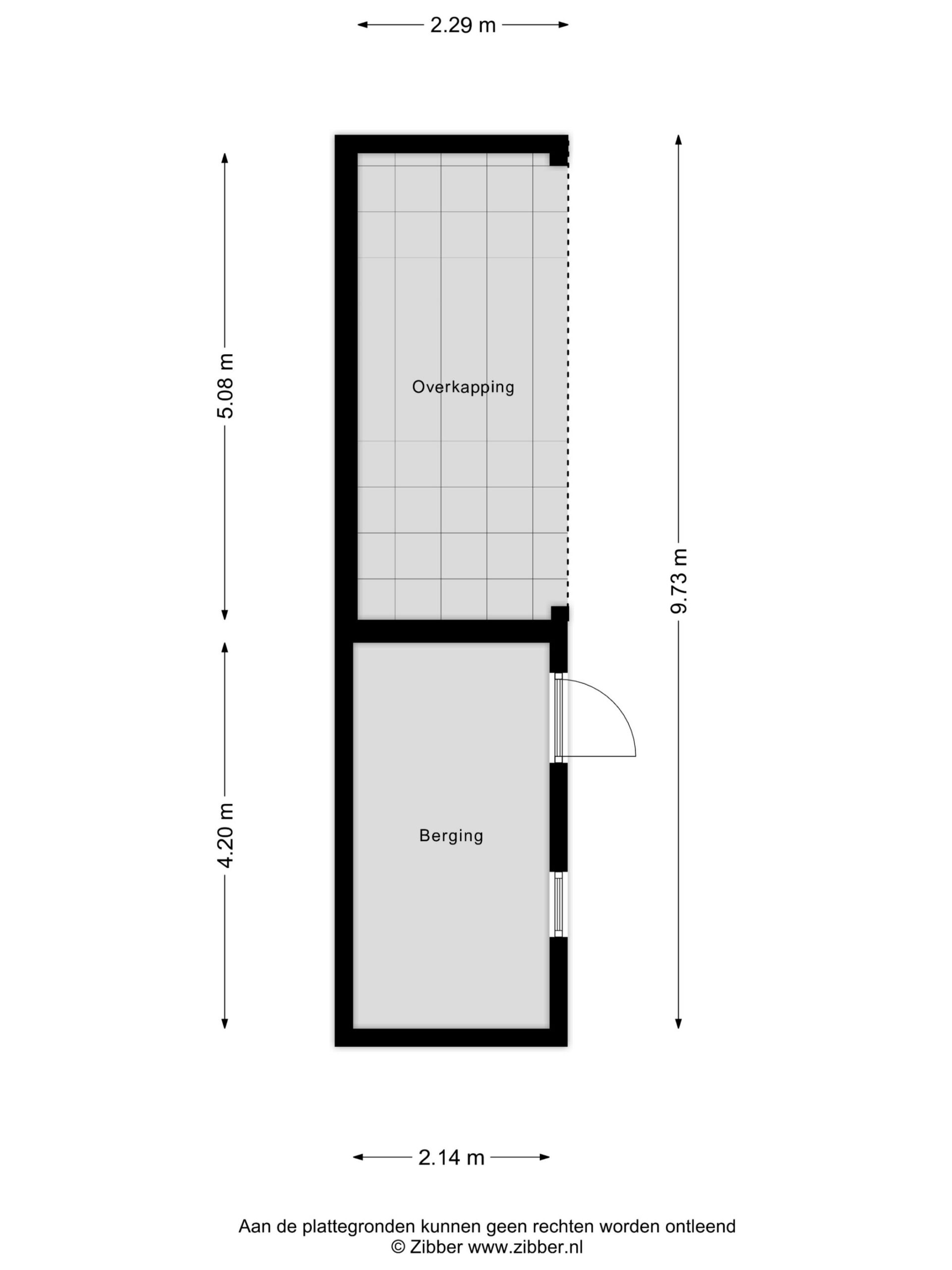
De stenen berging is voorzien van elektra.
Aan de achterzijde van de onderhoudsvriendelijke achtertuin bevindt zich een sfeervolle veranda, waar het heerlijk vertoeven is.
De woning beschikt over elektrische zonwering.
Beers is uitstekend gelegen; o.a. nabij natuurgebieden om heerlijk te wandelen en/ of te fietsen, dorpen als Cuijk en Grave om gezellig te winkelen. De snelweg A73 richting Nijmegen-Venlo maakt grotere steden in de omgeving goed bereikbaar.
Uitgebreide watersportmogelijkheden vind je bij "De Kraaijenbergse Plassen" die op 5 minuten van Beers gelegen zijn.
Belangrijkste vaste lasten:
(volgens opgave huidige gebruiker)
Onroerendezaakbelasting: € 321,90 per jaar
Rioolrecht: € 271,44 per jaar
Afvalstoffenheffing: € 271,80 per jaar
Toon meer
Toon minder