In het project "De Cuijkse Tuinen", in de gewilde woonwijk "De Heeswijkse Kampen", gelegen goed onderhouden tussenwoning met een veranda en vrijstaande berging. Deze gezinswoning is voorzien van 3 slaapkamers op de 1e verdieping en een 4e slaapkamer op de 2e verdieping, de diepe achtertuin is gelegen op het zonnige zuiden. Op loopafstand van een speelweide, supermarkt, basisschool met kinderopvang en recreatiegebied "De Kraaijenbergse Plassen" en aan de voorzijde van de woning heb je een vrij uitzicht over groen.
Indeling:
Begane grond: hal/ entree met meterkast en de cv-opstelling, toiletruimte, woonkamer met een sfeervolle houtkachel, provisieruimte en moderne keuken…
In het project "De Cuijkse Tuinen", in de gewilde woonwijk "De Heeswijkse Kampen", gelegen goed onderhouden tussenwoning met een veranda en vrijstaande berging. Deze gezinswoning is voorzien van 3 slaapkamers op de 1e verdieping en een 4e slaapkamer op de 2e verdieping, de diepe achtertuin is gelegen op het zonnige zuiden. Op loopafstand van een speelweide, supermarkt, basisschool met kinderopvang en recreatiegebied "De Kraaijenbergse Plassen" en aan de voorzijde van de woning heb je een vrij uitzicht over groen.
Indeling:
Begane grond: hal/ entree met meterkast en de cv-opstelling, toiletruimte, woonkamer met een sfeervolle houtkachel, provisieruimte en moderne keuken voorzien van de benodigde inbouwapparatuur.
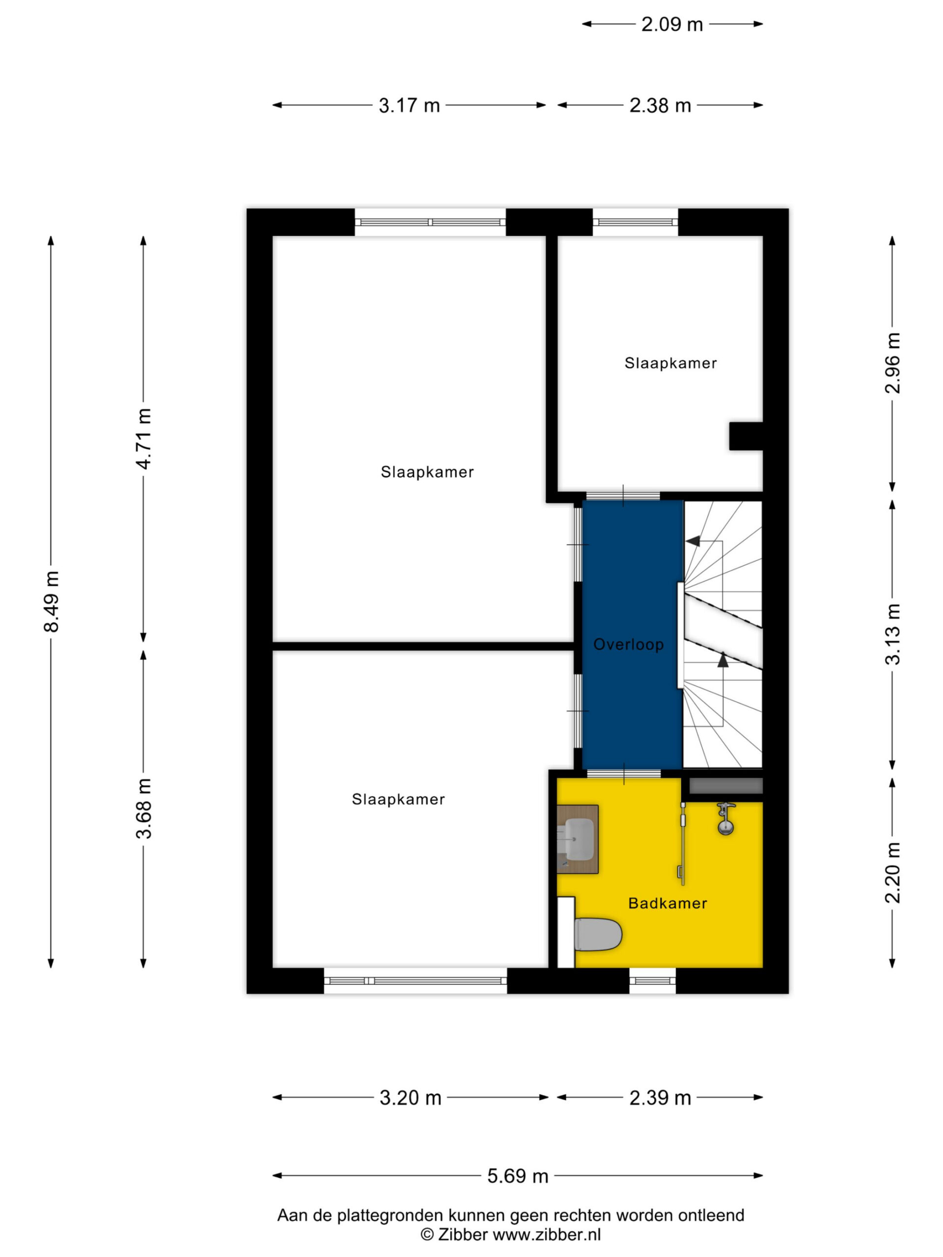
1e verdieping: overloop, 3 slaapkamers, badkamer voorzien van een inloopdouche, toilet, wastafelmeubel.
2e verdieping: via een vaste trap bereikbare voorzolder met de witgoedaansluitingen, zolderkamer met Velux-dakraam en airconditioning.
Diverse gegevens:
De keukenopstelling is voorzien van een inductiekookplaat, afzuigkap (defect), combioven, oven, vaatwasser, koelkast, vriezer en spoelbak.
De cv-ketel is van het merk Intergas, bouwjaar 2014.
De woning is volledig geïsoleerd.
De begane grond is voorzien van een leisteen vloer met vloerverwarming, de 1e verdieping van laminaat en de 2e verdieping van een parketvloer en laminaat.
De woning beschikt over hardhouten kozijnen met dubbel glas en het betreft draai-/ kiepramen, er zijn grotendeels horren aanwezig en aan de achterzijde is er een zonnescherm aanwezig.
Deze jonge woning uit 2014 is van alle gemakken voorzien en gelegen in de gewilde woonwijk "De Cuijkse Tuinen", nabij de onlangs aangelegde en gelijknamige speelweide, recreatieplassen met strandje en een nieuw aangelegd bomenpark.
De autosnelweg A73 richting Nijmegen-Venlo is uitstekend bereikbaar, evenals het NS-station en het snelfietspad richting Nijmegen.
Belangrijkste vaste lasten
(volgens opgave huidige gebruiker):
Onroerendezaakbelasting: € 432,88 per jaar
Afvalstoffenheffing: € 261,00 per jaar
Rioolheffing: € 262,44 per jaar
Waterschapslasten: € 390,00 per jaar
Toon meer
Toon minder