In het hart van Wanroij gelegen, zeer authentieke en karaktervolle halfvrijstaande woning met een aanbouw en riante berging, op korte loopafstand van de dorpsvoorzieningen. De begane grond heeft een verrassende indeling met o.a. een zeer riante woonkamer, maar ook met een slaap- en badkamer. De zeer riante eerste verdieping is nog geheel nader in te delen met bijvoorbeeld meerdere slaapkamers en een extra badkamer. Door de vele aanpassingsmogelijkheden is deze woning (momenteel instapklaar) een uitgelezen kans voor starters, maar ook voor mensen die levensloopbestendig willen gaan wonen!
Indeling:
Kelder: ruime provisiekelder.
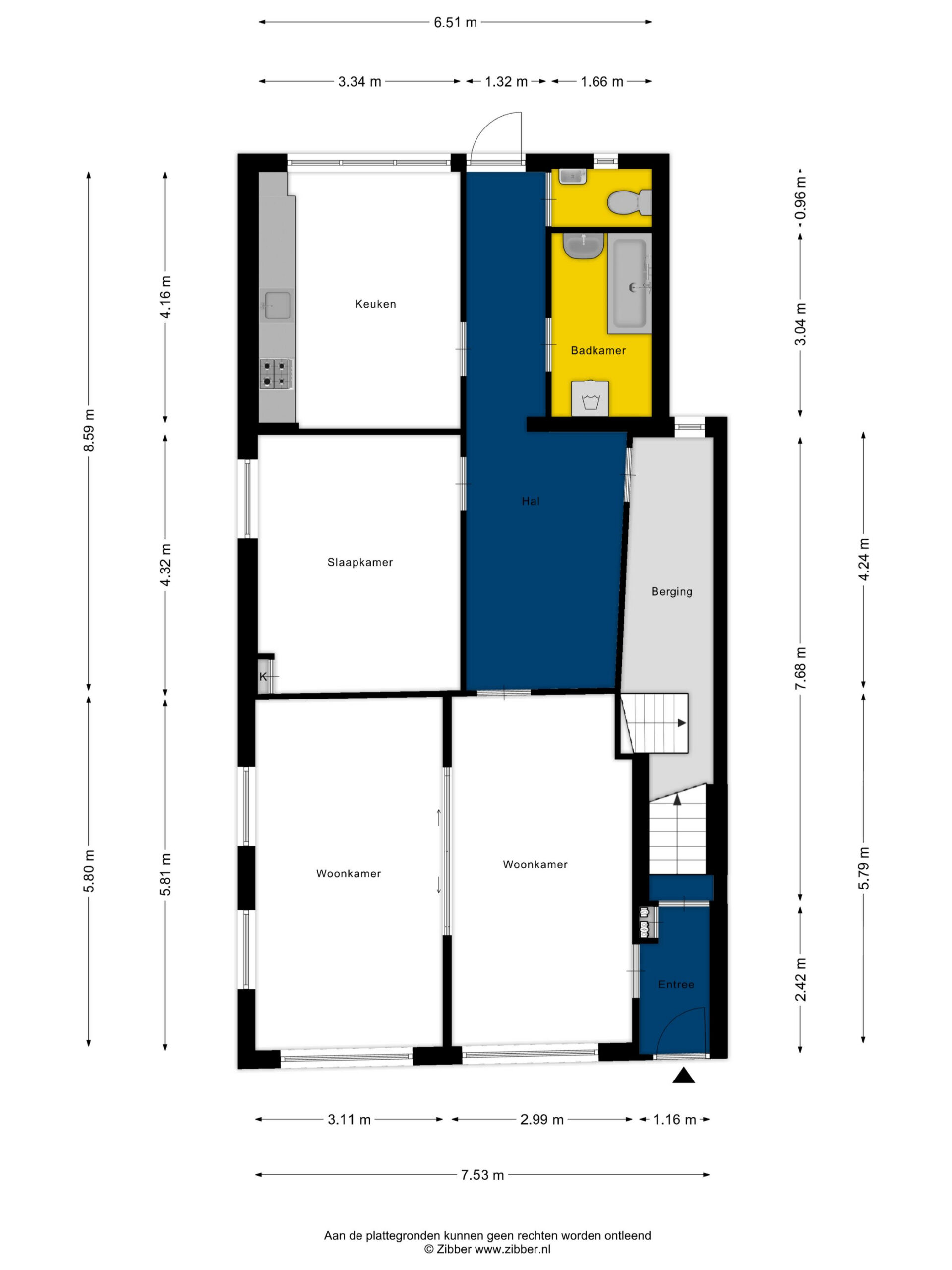
Begane grond: hal met meterkast en trapopgang.…
In het hart van Wanroij gelegen, zeer authentieke en karaktervolle halfvrijstaande woning met een aanbouw en riante berging, op korte loopafstand van de dorpsvoorzieningen. De begane grond heeft een verrassende indeling met o.a. een zeer riante woonkamer, maar ook met een slaap- en badkamer. De zeer riante eerste verdieping is nog geheel nader in te delen met bijvoorbeeld meerdere slaapkamers en een extra badkamer. Door de vele aanpassingsmogelijkheden is deze woning (momenteel instapklaar) een uitgelezen kans voor starters, maar ook voor mensen die levensloopbestendig willen gaan wonen!
Indeling:
Kelder: ruime provisiekelder.
Begane grond: hal met meterkast en trapopgang. Een aan de voorzijde gelegen woonkamer en suite, een riante slaapkamer, separaat toilet en badkamer voorzien van een ligbad, wastafel en de aansluitingen t.b.v. het witgoed. Aan de achterzijde van de woning is de woonkeuken gelegen.
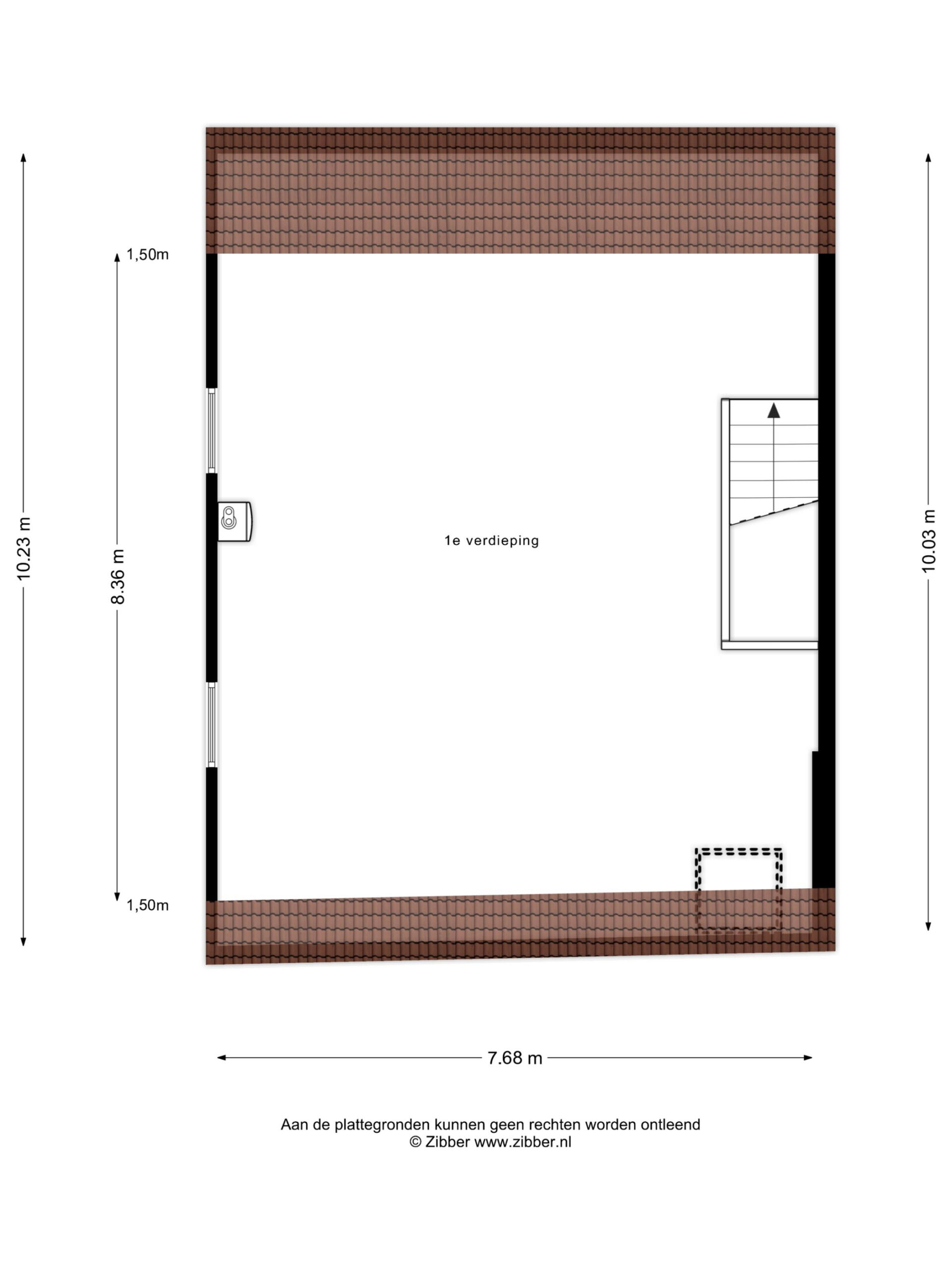
1e verdieping: deze zeer riante verdieping is nog geheel nader in te delen en in te richten met bijvoorbeeld meerdere slaapkamers, een werkkamer en/ of 2e badkamer.
Diverse gegevens:
De keukenopstelling is voorzien van een 4-pits gaskookplaat, afzuigkap en spoelbak.
Het verlaagde plafond kan verwijderd worden zodat de originele hoogte van 3,4 meter zichtbaar wordt!
Een hobbyist kan de 1e verdieping geheel naar eigen wens en inzicht indelen.
Levensloopbestendige woning met een slaap- en badkamer op de begane grond.
De achtertuin biedt volop privacy.
Alle dagelijkse voorzieningen zijn op korte afstand gelegen, zoals de basisschool, de supermarkt en enkele sportfaciliteiten. De nabijgelegen dorpen Sint Anthonis, Mill en Boxmeer zijn uitstekend bereikbaar.
De autosnelweg A73 richting Nijmegen-Venlo is binnen 10 autominuten bereikbaar.
Belangrijkste vaste lasten:
(volgens opgave huidige gebruiker)
Onroerendezaakbelasting: € 297,08 per jaar
Rioolrecht: € 262,44 per jaar
Afvalstoffenheffing: € 261,00 per jaar
Waterschapslasten: € 85,48 per jaar
Toon meer
Toon minder