Deze fraaie en modern ingerichte tussenwoning is de perfecte starterswoning met een vrijstaande berging en een zonnige tuin op het zuiden. De woning is de afgelopen jaren goed onderhouden, waarbij onder andere de keukeninrichting, alle kozijnen en de meterkast vernieuwd zijn. Een keurig afgewerkte, sfeervolle woning, gelegen in een rustige en kindvriendelijke woonomgeving.
Indeling:
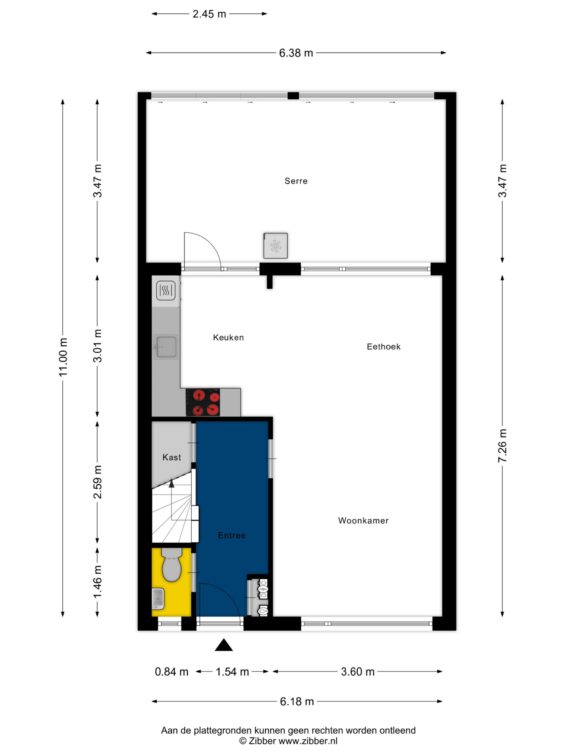
Begane grond: hal met vernieuwde meterkast, toilet en trapkast. Een lichte en ruime woonkamer met aan de voorzijde een vrij uitzicht over de woonstraat. Een open keuken met een complete en zeer nette keukeninrichting. Over de gehele achterzijde is een serre met schuifwanden aangebouwd.
…
Deze fraaie en modern ingerichte tussenwoning is de perfecte starterswoning met een vrijstaande berging en een zonnige tuin op het zuiden. De woning is de afgelopen jaren goed onderhouden, waarbij onder andere de keukeninrichting, alle kozijnen en de meterkast vernieuwd zijn. Een keurig afgewerkte, sfeervolle woning, gelegen in een rustige en kindvriendelijke woonomgeving.
Indeling:
Begane grond: hal met vernieuwde meterkast, toilet en trapkast. Een lichte en ruime woonkamer met aan de voorzijde een vrij uitzicht over de woonstraat. Een open keuken met een complete en zeer nette keukeninrichting. Over de gehele achterzijde is een serre met schuifwanden aangebouwd.
1e verdieping: overloop, 3 slaapkamers voorzien van een laminaatvloer, waarvan 1 slaapkamer is voorzien van airconditioning. De badkamer is voorzien van een inloopdouche en wastafel met meubel.
2e verdieping: via een vlizotrap bereikbare zolder met de opstelling van de cv-ketel.
Diverse gegevens:
De keukenopstelling is voorzien van een inductiekookplaat, afzuigkap, koelkast, vaatwasser en combioven.
De cv-ketel is van het merk Nefit, bouwjaar .........
De kap van de woning is nageïsoleerd en de spouwmuren zijn in 2025 geïsoleerd.
De woning is voorzien van kunststof kozijnen met HR-triple glas.
De woning is centraal gelegen in het sfeervolle centrum van Mill; hier vind je een diversiteit aan winkels, horeca, het Cultureel centrum en enkele supermarkten met ruime parkeerplaatsen. Dit alles is op loopafstand bereikbaar.
Mill is een dorp met een rijk en actief verenigingsleven voor zowel jong als oud, er is een basisschool en ook voortgezet onderwijs wordt in Mill en in de directe omgeving aangeboden.
In de omgeving van Mill vind je verschillende natuurgebieden, zoals o.a. "De Kuilen", bossen of de Heide.
Met de auto ben je snel in een van de grotere steden van de regio, zoals Nijmegen, Eindhoven, Den Bosch en Venlo.
Belangrijkste vaste lasten
(volgens opgave huidige gebruiker):
Onroerendezaakbelasting: € 296,01 per jaar
Rioolheffing: € 262,44 per jaar
Afvalstoffenheffing: € 261,00 per jaar
Waterschapslasten: € ....... per jaar
Toon meer
Toon minder