Aan de rand van het dorp Rijkevoort, op een landelijk gelegen woonlocatie, uitgebouwde en opgebouwde vrijstaande woning met vrijstaande garage en fraaie overkapping op een perceel van maar liefst 1.002 m2. De woning is in de loop der jaren gemoderniseerd en vanuit de woonkeuken heeft u een prachtig zicht op de tuin. Op korte afstand van de dorpsvoorzieningen en de toegangswegen richting de A73 (Venlo-Nijmegen).
Indeling:
Begane grond: entree/hal met meterkast, woonkamer met gezellige erker, gashaard en en suite deuren naar een 2e zitkamer. Praktische kelderkast en middels schuifdeuren toegang tot de royale woonkeuken met volop lichtinval en…
Aan de rand van het dorp Rijkevoort, op een landelijk gelegen woonlocatie, uitgebouwde en opgebouwde vrijstaande woning met vrijstaande garage en fraaie overkapping op een perceel van maar liefst 1.002 m2. De woning is in de loop der jaren gemoderniseerd en vanuit de woonkeuken heeft u een prachtig zicht op de tuin. Op korte afstand van de dorpsvoorzieningen en de toegangswegen richting de A73 (Venlo-Nijmegen).
Indeling:
Begane grond: entree/hal met meterkast, woonkamer met gezellige erker, gashaard en en suite deuren naar een 2e zitkamer. Praktische kelderkast en middels schuifdeuren toegang tot de royale woonkeuken met volop lichtinval en sfeervolle houtkachel. De woonkeuken is voorzien van alle benodigde inbouwapparatuur, middels de openslaande tuindeuren toegang tot de achtertuin. Praktische bijkeuken met de witgoedaansluitingen, gootsteen en cv-opstelling, toiletruimte met toilet en fonteintje.
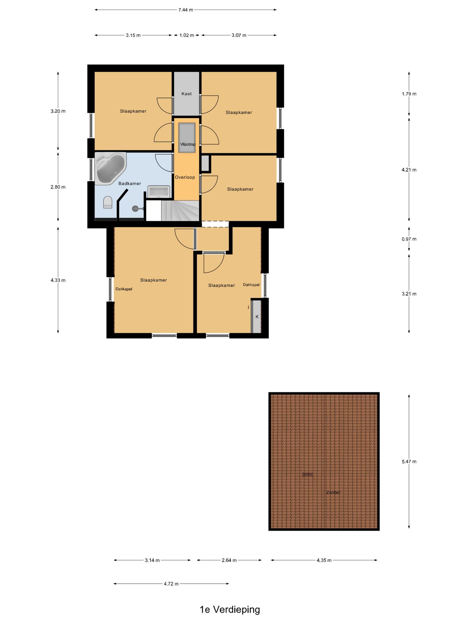
1e verdieping: overloop, 4 slaapkamers waarvan 2 slaapkamers beschikken over een wastafel, werkkamer, badkamer voorzien van inloopdouche, ligbad, wandcloset, wastafel met meubel en vloerverwarming.
2e verdieping: middels vlizotrap te bereiken bergzolder.
Diverse gegevens:
De keukeninrichting is voorzien van 5-pits gasfornuis, afzuigkap, vaatwasser, combioven, koelkast en spoelbak.
De cv-ketel is van het merk Nefit, bouwjaar 2007.
De woning is uitstekend geïsoleerd en beschikt over kunststof kozijnen met dubbel glas.
De begane grond is voorzien van vloerverwarming.
In 2013 zijn er zonnepanelen geplaatst die jaarlijks 1058 kWh opleveren.
Aan de voorzijde bevind zich een ruime oprit met voldoende parkeergelegenheid.
De tuin is geheel omheind en beschikt over fruitbomen.
Er is een grondwaterpuls aanwezig t.b.v. het beregenen van de tuin.
Het centrum van Boxmeer is op slechts 5 autominuten gelegen, op korte afstand van het buiten-/ natuurgebied en op enkele autominuten van de snelweg A73 richting Nijmegen-Venlo.
Belangrijkste vaste lasten
(volgens opgave huidige gebruiker):
Onroerendezaakbelasting: € 539,00 per jaar
Rioolheffing: € 256,36 per jaar
Afvalstoffenheffing: € 223,56 per jaar
Waterschapslasten: € 388,00 per jaar
Toon meer
Toon minder