Op een prachtige landelijke woonlocatie met weids vrij uitzicht ligt deze goed onderhouden woonboerderij met vrijstaande garage/ werkplaats. Op de begane grond is momenteel een volwaardige mantelzorgwoning gerealiseerd, waardoor deze woonboerderij uitermate geschikt is voor dubbele bewoning, inwoning of levensloopbestendig wonen, B&B of praktijk aan huis. De vrijstaande garage biedt volop bergruimte en beschikt op de eerste verdieping over een kantoorruimte, perfect voor thuiswerken, een praktijk aan huis of hobbyruimte.
Een unieke plek waar rust, ruimte en comfortabel wonen perfect samenkomen.
Indeling:
Begane grond: entree met meterkast, een sfeervolle L-vormige woonkamer met fraai uitzicht over het buitengebied,…
Op een prachtige landelijke woonlocatie met weids vrij uitzicht ligt deze goed onderhouden woonboerderij met vrijstaande garage/ werkplaats. Op de begane grond is momenteel een volwaardige mantelzorgwoning gerealiseerd, waardoor deze woonboerderij uitermate geschikt is voor dubbele bewoning, inwoning of levensloopbestendig wonen, B&B of praktijk aan huis. De vrijstaande garage biedt volop bergruimte en beschikt op de eerste verdieping over een kantoorruimte, perfect voor thuiswerken, een praktijk aan huis of hobbyruimte.
Een unieke plek waar rust, ruimte en comfortabel wonen perfect samenkomen.
Indeling:
Begane grond: entree met meterkast, een sfeervolle L-vormige woonkamer met fraai uitzicht over het buitengebied, woonkeuken met een moderne keukenopstelling voorzien van diverse inbouwapparatuur, bijkeuken met de toiletruimte voorzien van wandcloset en fonteintje en de cv-opstelling. Vanuit de bijkeuken is de mantelzorgwoning/ gastenverblijf bereikbaar.
1e verdieping: royale overloop, praktische wasruimte met de witgoedaansluitingen, 3 ruime slaapkamers, allen voorzien van een praktische bergruimte. De moderne badkamer is ingericht met een dubbel wastafel en een inloopdouche.
Indeling mantelzorgwoning:
Begane grond: entree met de cv-opstelling, meterkast, witgoedaansluitingen en de toiletruimte, woonkamer met open keuken voorzien van diverse inbouwapparatuur, middels de schuifpui is er toegang tot de tuin, hal met 2 slaapkamers en een badkamer voorzien van douche, toilet en wastafel.
Diverse gegevens:
De moderne keukeninrichting (vernieuwd in 2023) bestaat uit een inductiekookplaat met geïntegreerde afzuiging, koelkast, vaatwasser, Quooker met mogelijkheid voor bruiswater, combioven en koffiecorner.
De woning, mantelzorgwoning en de vrijstaande garage beschikken ieder over een eigen cv-ketel van het merk Nefit Het bouwjaar van de cv-ketel van het woonhuis is 2016. De cv-ketel van de aanbouw 1998 en de cv-ketel van de garage zijn geplaatst in 2011.
De woning is uitstekend geïsoleerd en beschikt op de begane grond over vloerverwarming.
De riet gedekte kap, met schroefdak, is vernieuwd in het voorjaar van 2026.
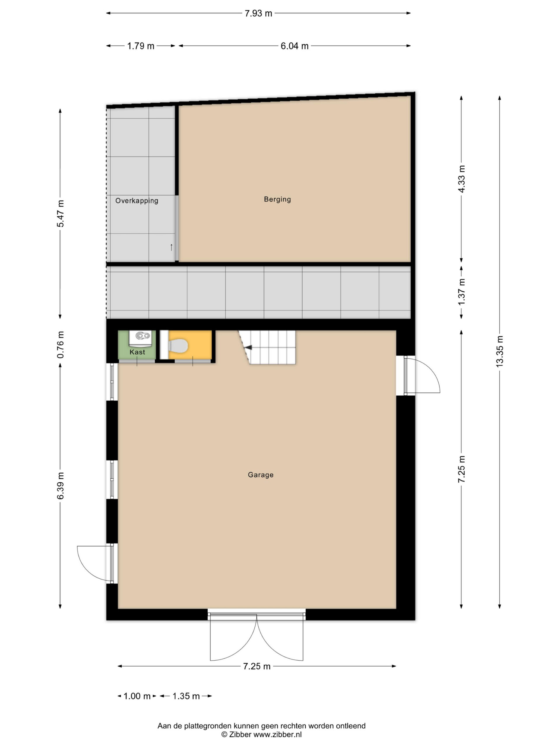
Het multifunctionele bijgebouw beschikt over spouwisolatie en is voorzien van verwarming, water en elektra. Het kantoorgedeelte op de 1e verdieping beschikt over een keukenblokje met koud en warm water, intercom, dakramen en bergruimte.
De fraai aangelegde achtertuin beschikt over een beregeningsinstallatie met pomp en een fraaie veranda met buitenkeuken.
Op korte afstand gelegen van het dorp Cuijk met alle dagelijkse voorzieningen. En de toerit van de autosnelweg A73 is goed bereikbaar.
Toon meer
Toon minder