Deze perfect onderhouden, volledig geïsoleerde en instapklare geschakelde twee-onder-een-kapwoning met een royale aangebouwde berging (nu deels in gebruik als bijkeuken), is gelegen in een kindvriendelijke en ruim opgezette woonomgeving. De woonkamer en modern ingerichte keuken staan in open verbinding en zijn zeer sfeervol ingericht en afgewerkt.
Indeling:
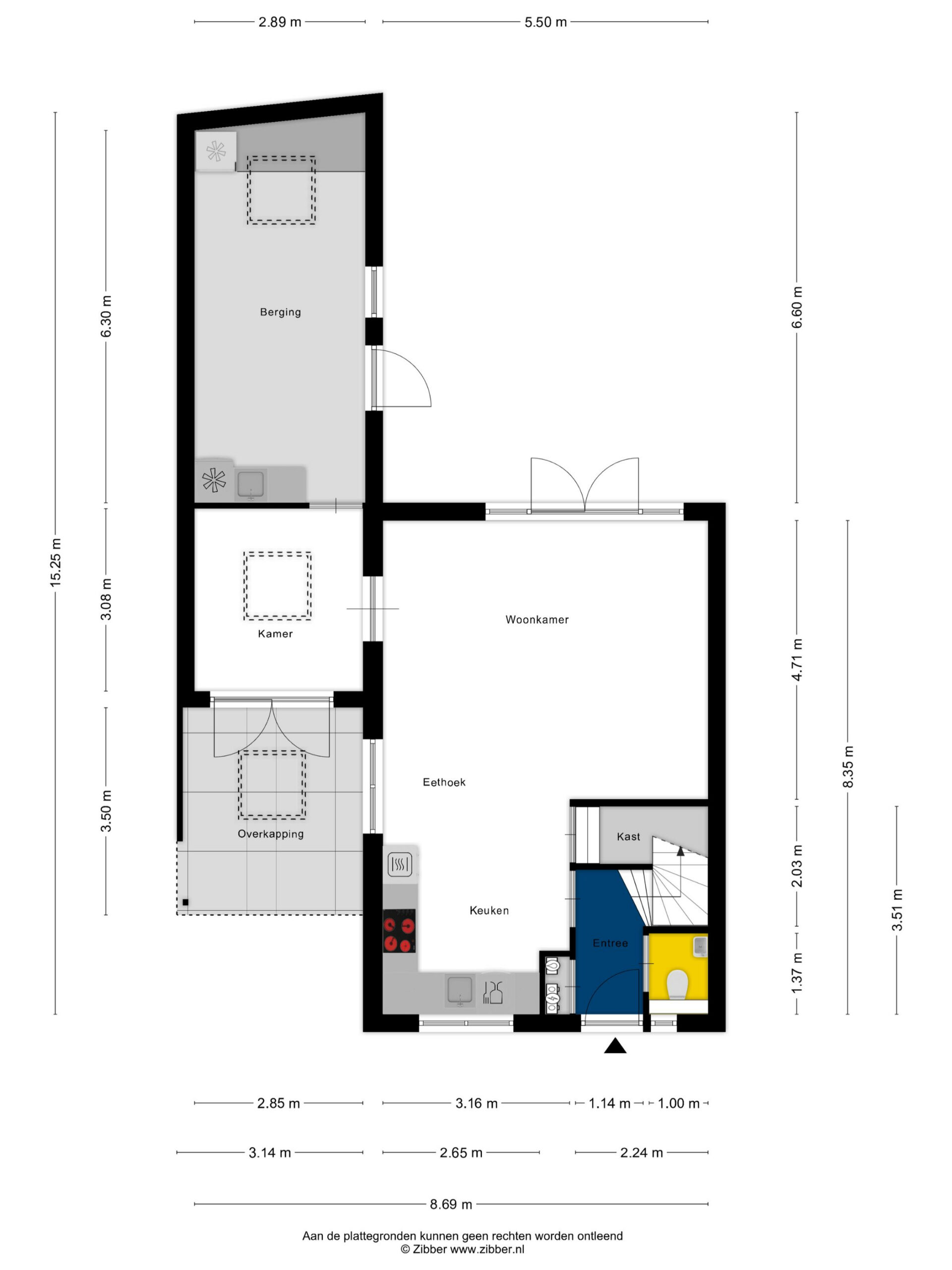
Begane grond: hal met meterkast en toilet met fonteintje. De sfeervolle woonkamer, voorzien van vloerverwarming en met openslaande tuindeuren, staat in open verbinding met de keuken, die aan de voorzijde van de woning gesitueerd is. Vanuit de woonkamer is een zeer praktische aangebouwde berging bereikbaar.
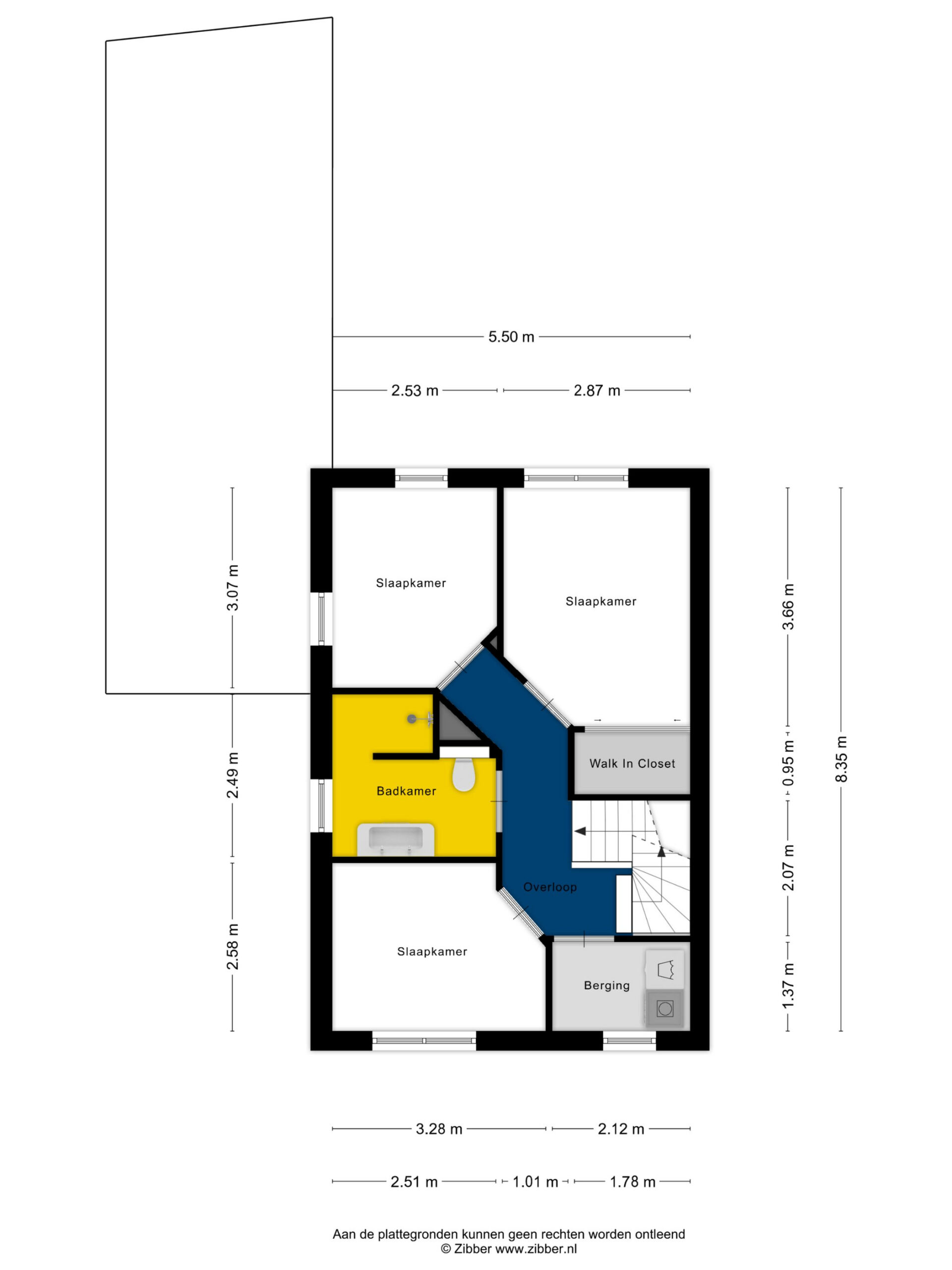
1e verdieping: overloop, 3 slaapkamers met…
Deze perfect onderhouden, volledig geïsoleerde en instapklare geschakelde twee-onder-een-kapwoning met een royale aangebouwde berging (nu deels in gebruik als bijkeuken), is gelegen in een kindvriendelijke en ruim opgezette woonomgeving. De woonkamer en modern ingerichte keuken staan in open verbinding en zijn zeer sfeervol ingericht en afgewerkt.
Indeling:
Begane grond: hal met meterkast en toilet met fonteintje. De sfeervolle woonkamer, voorzien van vloerverwarming en met openslaande tuindeuren, staat in open verbinding met de keuken, die aan de voorzijde van de woning gesitueerd is. Vanuit de woonkamer is een zeer praktische aangebouwde berging bereikbaar.
1e verdieping: overloop, 3 slaapkamers met laminaatvloer, een aparte wasruimte en badkamer voorzien van een wandcloset, inloopdouche en dubbele wastafel met badmeubel.
2e verdieping: via een vaste trap bereikbare zolderverdieping met voorzolder en een extra slaap-/ werkkamer voorzien van een dakkapel.
Diverse gegevens:
De moderne keukenopstelling is voorzien van een vaatwasser (2021), inductiekookplaat (2025), afzuigkap (2025), combioven (2024) en koelkast.
De HR-combiketel is van het merk Remeha, bouwjaar 2011.
Er zijn 9 zonnepanelen aanwezig.
De woning is uitstekend geïsoleerd.
Gelegen in een kindvriendelijke woonwijk, op korte afstand van het buiten-/ natuurgebied.
Het centrum van Boxmeer is op slechts 5 autominuten gelegen, de snelweg A73 richting Nijmegen-Venlo is eveneens in enkele autominuten bereikbaar.
Belangrijkste vaste lasten
(volgens opgave huidige gebruiker):
Onroerendezaakbelasting: € 404,24 per jaar
Rioolheffing: € 262,44 per jaar
Afvalstoffenheffing: € 261,00 per jaar
Waterschapslasten: € 382,00 per jaar
Toon meer
Toon minder