In de dorpskern van Oeffelt gelegen goed onderhouden twee-onder-een-kapwoning met een stenen schuur/ garage, royale oprit en houten tuinhuis. De woning beschikt over een perceel van bijna 300 m² en een zonnige en diepe achtertuin gelegen op het westen. Alle benodigde dorpsvoorzieningen en het fraaie buitengebied liggen op loopafstand.
Indeling:
Begane grond: entree, hal, toilet, meterkast, trapkast, dichte keuken voorzien van diverse inbouwapparatuur, woonkamer, praktische bijkeuken met de witgoedaansluitingen en boiler.
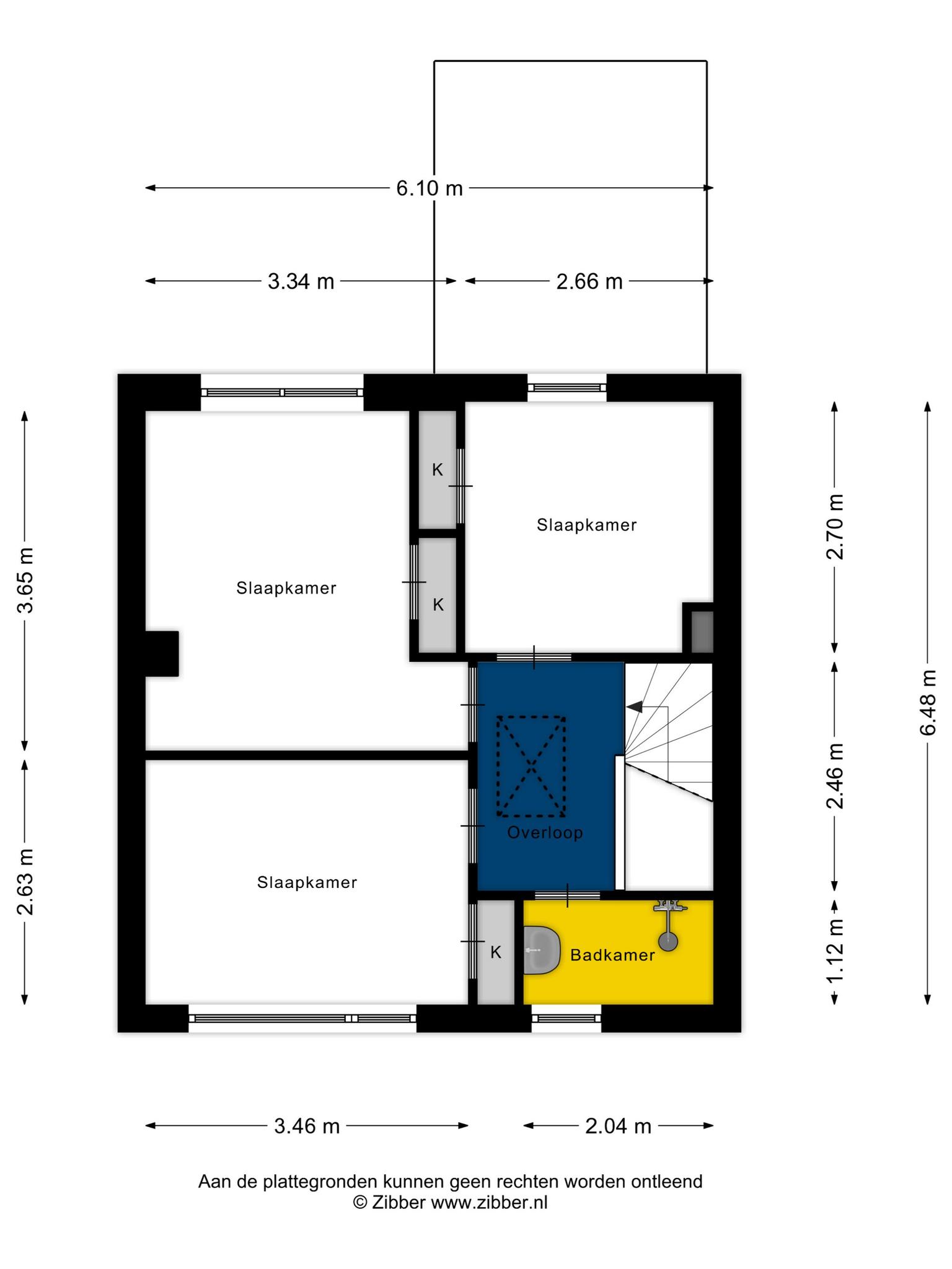
1e verdieping: overloop, 3 slaapkamers voorzien van vaste kasten, badkamer voorzien van een douche en vaste wastafel.
2e verdieping: zolderberging met dakraam en cv-opstelling, deze verdieping…
In de dorpskern van Oeffelt gelegen goed onderhouden twee-onder-een-kapwoning met een stenen schuur/ garage, royale oprit en houten tuinhuis. De woning beschikt over een perceel van bijna 300 m² en een zonnige en diepe achtertuin gelegen op het westen. Alle benodigde dorpsvoorzieningen en het fraaie buitengebied liggen op loopafstand.
Indeling:
Begane grond: entree, hal, toilet, meterkast, trapkast, dichte keuken voorzien van diverse inbouwapparatuur, woonkamer, praktische bijkeuken met de witgoedaansluitingen en boiler.
1e verdieping: overloop, 3 slaapkamers voorzien van vaste kasten, badkamer voorzien van een douche en vaste wastafel.
2e verdieping: zolderberging met dakraam en cv-opstelling, deze verdieping is middels een vlizotrap bereikbaar.
Diverse gegevens:
De keukenopstelling is voorzien van een 4-pits gaskookplaat, oven en koelkast.
In 2012 is de woning voorzien van een nieuw dak.
De cv-ketel is van het merk Nefit, bouwjaar 2017.
De woning beschikt over een energielabel D en is voorzien van dakisolatie, spouwisolatie en grotendeels dubbel glas.
De woning is voorzien van rolluiken.
Het natuurgebied "De Maasheggen" met volop fiets- en wandelroutes ligt op een steenworp afstand en op loopafstand gelegen van de basisschool, supermarkt en het buitengebied.
Verkoper attendeert hierbij koper op het feit dat hij het verkochte nooit zelf feitelijk heeft gebruikt en dat hij derhalve koper niet heeft kunnen informeren over eigenschappen c.q. gebreken aan het object waarvan hij op de hoogte zou zijn geweest als hij het verkochte zelf feitelijk had gebruikt.
Toon meer
Toon minder