Aan de rand van het dorp Boxmeer ligt deze goed onderhouden vrijstaande villa met een verrassende indeling, souterrain (van ruim 100 m²), vrijstaande tuinberging/ tuinhuis, een carport en vanuit de eet-/ tuinkamer aan de achterzijde heb je een heerlijk vrij uitzicht op de fraai aangelegde, royale en vrij gelegen achtertuin. Deze levensloopbestendige woning is toekomstgericht met een slaapkamer en badkamer op de begane grond, maar beschikt daarnaast ook over 3 slaapkamers op de 1e verdieping. De ruime kelder beschikt over een eigen werkplaats, hobbyruimte en wijnkelder. Een sfeervolle woning op een bijzondere plek, waar je elke dag geniet van rust,…
Aan de rand van het dorp Boxmeer ligt deze goed onderhouden vrijstaande villa met een verrassende indeling, souterrain (van ruim 100 m²), vrijstaande tuinberging/ tuinhuis, een carport en vanuit de eet-/ tuinkamer aan de achterzijde heb je een heerlijk vrij uitzicht op de fraai aangelegde, royale en vrij gelegen achtertuin. Deze levensloopbestendige woning is toekomstgericht met een slaapkamer en badkamer op de begane grond, maar beschikt daarnaast ook over 3 slaapkamers op de 1e verdieping. De ruime kelder beschikt over een eigen werkplaats, hobbyruimte en wijnkelder. Een sfeervolle woning op een bijzondere plek, waar je elke dag geniet van rust, ruimte en vrijheid met alle dagelijkse voorzieningen op korte afstand van het gezellige centrum van Boxmeer.
Indeling:
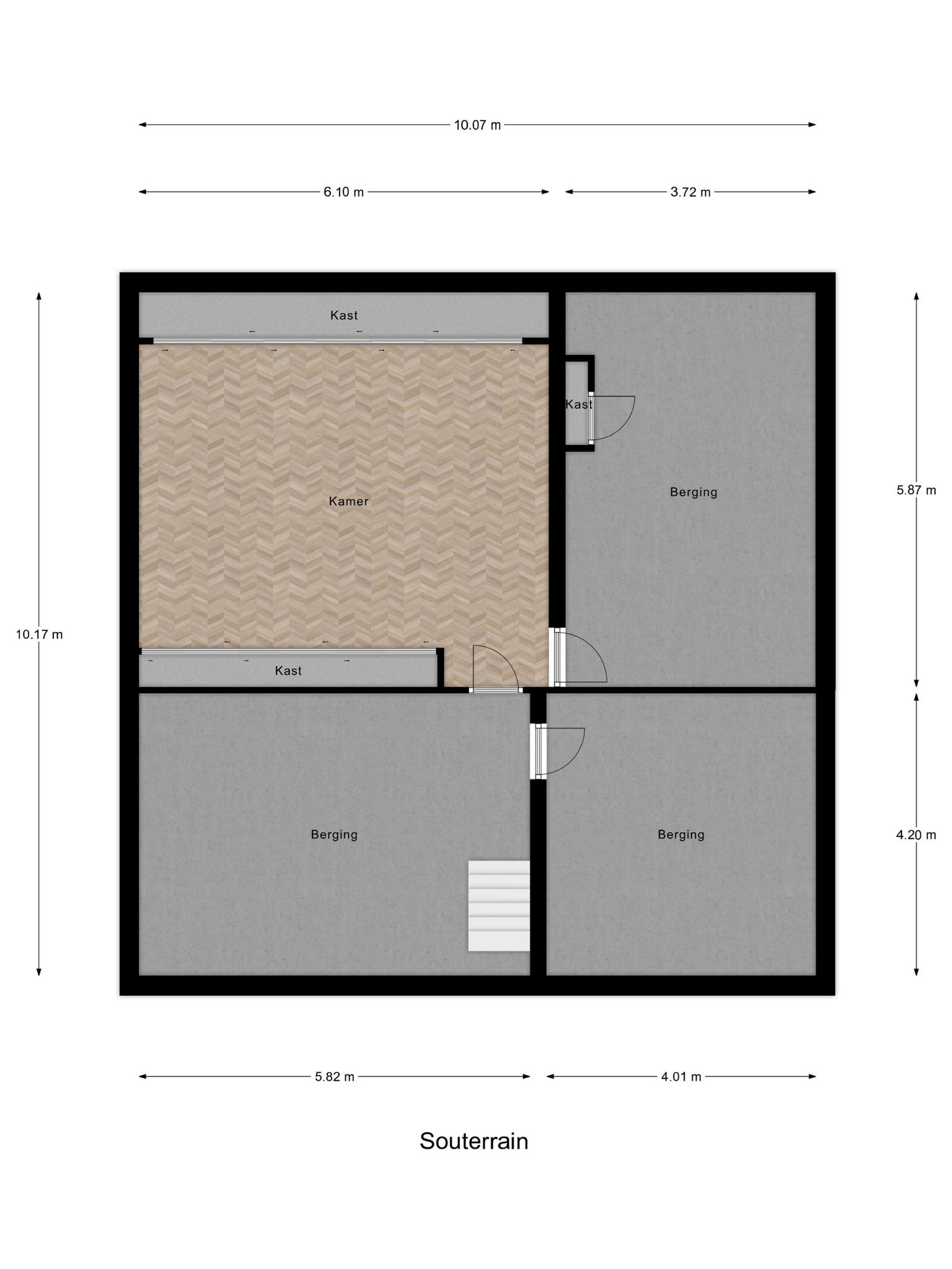
Souterrain: Ruime kelder met werkplaats, hobbykamers voorzien van diverse inbouwkasten en wijnkelder.
Begane grond: entree/ hal met meterkast, garderobenis en toiletruimte voorzien van wandcloset en fonteintje, verrassend ingedeelde woonkamer met verschillende gezellige hoeken en een sfeervolle gashaard, een tuinkamer met schuifpui naar de achtertuin, luxe woonkeuken voorzien van alle denkbare inbouwapparatuur, berging/ bijkeuken met de witgoedaansluitingen, ruime slaapkamer met kastenwand en badkamer voorzien van ligbad, douche, wastafel met meubel en toilet.
1e verdieping: overloop/ vide met dakraam, 3 slaapkamers waarvan 2 slaapkamers toegang hebben tot het balkon, technische ruimte met de cv-opstelling en tal van opbergmogelijkheden en een separaat toilet, 2e badkamer voorzien van een douche, toilet en wastafel.
Diverse gegevens:
De Siematic keukeninrichting bestaat uit een inductiekookplaat, afzuigkap, grillplaat, combimagnetron, stoomoven, bordenwarmer, koffiemachine, koelkast, vaatwasser en spoelbak (Miele apparatuur).
De cv-ketel is van het merk Intergas, bouwjaar circa 2015.
De woning beschikt over een woonoppervlak van 238 m² en daarnaast nog over een souterrain van ruim 100 m².
De woning beschikt over dak- en vloerisolatie, spouwisolatie en dubbel glas.
De begane grond is voorzien van vloerverwarming.
De woning beschikt deels over elektrisch bedienbare rolluiken en screens.
De uitgestrekte achtertuin met volop privacy is gesitueerd op het zuiden, waar het heerlijk vertoeven is, daarnaast is er een sproei-installatie en een puls aanwezig.
Er zijn 14 zonnepanelen aanwezig en 2 airco-units.
Op korte afstand van het centrum van Boxmeer voor alle dagelijkse voorzieningen, zoals o.a. een supermarkt, huisarts, apotheek, scholen en gezellige cafés en restaurants.
Belangrijkste vaste lasten
(volgens opgave huidige gebruiker):
Onroerendezaakbelasting: € 849,86 per jaar
Rioolheffing: € 197,40 per jaar
Afvalstoffenheffing: € 261,00 per jaar
Waterschapslasten: € ..... per jaar
Toon meer
Toon minder