Goed onderhouden, instapklare en gemoderniseerde twee-onder-een-kapwoning met een zeer royale garage (ca 40 m²) en ruime eigen oprit. De woning beschikt over een vrij gelegen achtertuin met veel privacy en vrij uitzicht op groen. Gelegen in een rustige woonwijk, nabij de basisschool, waarbij de landerijen en het natuurgebied op korte loopafstand liggen en de A73 en/ of A50 bereikt u in ca. 15 autominuten.
Indeling:
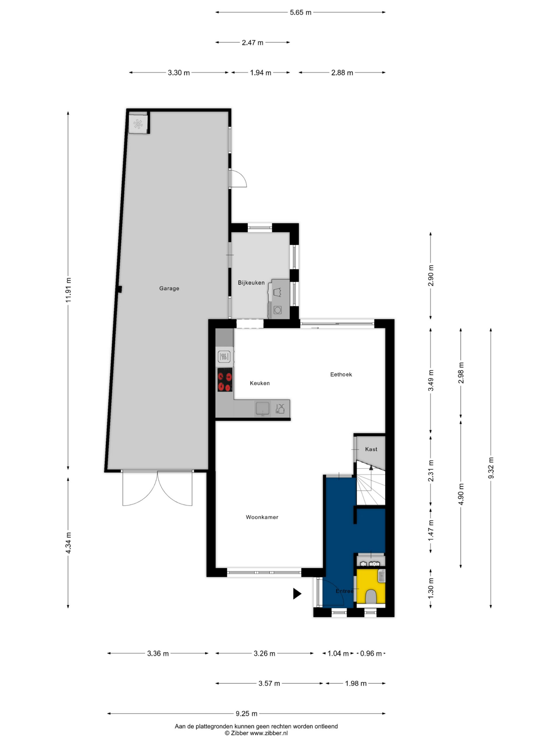
Begane grond: entree/ hal, toilet met fonteintje (2021), garderobenis en meterkast (2022). Woonkamer met een trapkast en schuifpui naar de achtertuin, fraaie keuken in hoekopstelling met inbouwapparatuur vernieuwd in 2022, praktische bijkeuken met witgoedaansluitingen…
Goed onderhouden, instapklare en gemoderniseerde twee-onder-een-kapwoning met een zeer royale garage (ca 40 m²) en ruime eigen oprit. De woning beschikt over een vrij gelegen achtertuin met veel privacy en vrij uitzicht op groen. Gelegen in een rustige woonwijk, nabij de basisschool, waarbij de landerijen en het natuurgebied op korte loopafstand liggen en de A73 en/ of A50 bereikt u in ca. 15 autominuten.
Indeling:
Begane grond: entree/ hal, toilet met fonteintje (2021), garderobenis en meterkast (2022). Woonkamer met een trapkast en schuifpui naar de achtertuin, fraaie keuken in hoekopstelling met inbouwapparatuur vernieuwd in 2022, praktische bijkeuken met witgoedaansluitingen en toegang tot de zeer royale garage inpandig bereikbare garage.
1e verdieping: overloop, 3 slaapkamers, badkamer voorzien van een ligbad met whirlpool, wandcloset, douchecabine en wastafelmeubel.
2 verdieping: middels een vaste trap bereikbare zolderruimte met de cv-opstelling en bergruimte achter de knieschotten.
Bijzonderheden;
De keuken is voorzien van de volgende apparatuur: koelkast, vriezer, afzuigkap, combioven, inductiekookplaat en vaatwasser.
De woning is voorzien van dakisolatie en dubbelglas, grotendeels met kunststof kozijnen en er zijn rolluiken en horren aanwezig.
De cv-ketel is van het merk Nefit, bouwjaar 2019.
De begane grond is voorzien van een pvc-vloer.
De ligging van de woning is perfect: Sint Hubert is een vriendelijk Brabants dorp met een gemoedelijke sfeer. Tegelijkertijd liggen stedelijke voorzieningen binnen handbereik. Binnen 15 autominuten bereikt u Uden of de A73, wat zorgt voor een uitstekende bereikbaarheid.
Belangrijkste vaste lasten:
(volgens opgave huidige gebruiker)
Onroerendezaakbelasting: € 345,88 per jaar
Rioolrecht: € 262,44 per jaar
Afvalstoffenheffing: € 261,00 per jaar
Waterschapslasten: € 365,00 per jaar
Toon meer
Toon minder