In een rustige en kindvriendelijke wijk van het dorp Sint Anthonis gelegen, royale vrijstaande woning met een vrijstaande garage, op een perceel van maar liefst 1.310 m². De op het westen gesitueerde achtertuin biedt volop privacy. Alle benodigde voorzieningen, zoals een supermarkt, de basisschool, huisartsen, apotheek en tandarts zijn op loopafstand gelegen. Binnen 10 minuten bereik je de A73 richting Nijmegen en Venlo.
Indeling:
Kelder: provisiekelder met opbergmogelijkheden.
Begane grond: entree, hal, meterkast, woonkamer met vloerverwarming, een leistenen vloer en een open haard, toegang via de openslaande deuren naar de tuinkamer met een open haard en schuifpui welke…
In een rustige en kindvriendelijke wijk van het dorp Sint Anthonis gelegen, royale vrijstaande woning met een vrijstaande garage, op een perceel van maar liefst 1.310 m². De op het westen gesitueerde achtertuin biedt volop privacy. Alle benodigde voorzieningen, zoals een supermarkt, de basisschool, huisartsen, apotheek en tandarts zijn op loopafstand gelegen. Binnen 10 minuten bereik je de A73 richting Nijmegen en Venlo.
Indeling:
Kelder: provisiekelder met opbergmogelijkheden.
Begane grond: entree, hal, meterkast, woonkamer met vloerverwarming, een leistenen vloer en een open haard, toegang via de openslaande deuren naar de tuinkamer met een open haard en schuifpui welke toegang biedt tot de privacybiedende achtertuin. De woonkeuken is voorzien van diverse inbouwapparatuur, ruime bijkeuken met toiletruimte en wasruimte met de aansluitingen t.b.v. het witgoed en een wastafel.
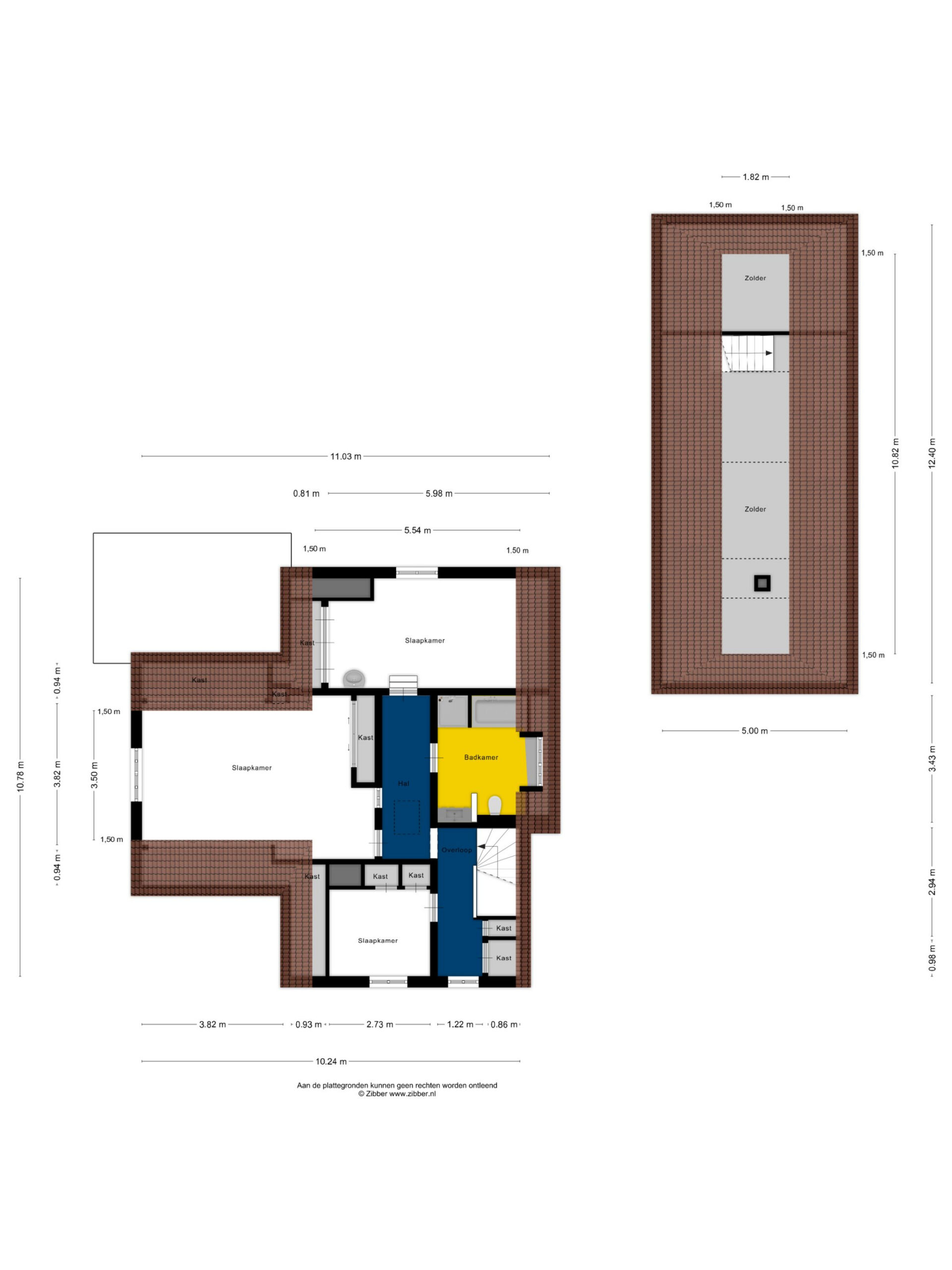
1e verdieping: overloop, één slaapkamer met een vaste kast, één slaapkamer met een vaste kast en wastafel, één ouderslaapkamer met schuifkasten. Geheel betegelde badkamer voorzien van een douchecabine, whirlpoolligbad, zwevend toilet en wastafel met meubel.
2e verdieping: middels een vlizotrap bereikbare zolder met de cv-opstelling en voldoende bergruimte.
Diverse gegevens:
De keuken is voorzien van de volgende inbouwapparatuur: koelkast, oven, afzuigkap en inductiekookplaat.
De cv-ketel is van het merk Atag, bouwjaar 2008.
De woning beschikt in totaal over 20 zonnepanelen.
De spouwmuren van de woning zijn in 2015 nageïsoleerd.
Er is een puls met beregeningsinstallatie aanwezig.
Het dakbeschot van het tuinhuis is asbesthoudend.
De garage beschikt over dak- en spouwisolatie, elektra, water, een keukenblok en een elektrische roldeur.
Toon meer
Toon minder