Starters opgelet!
Ben je op zoek naar een jonge, duurzame en onderhoudsvriendelijke woning? Dan is deze tussenwoning uit 2021 zeker een bezichtiging waard! De woning is uitstekend geïsoleerd, gasloos en beschikt over een zonnige achtertuin op het zuidoosten en een houten tuinberging met achterom. Deze moderne tussenwoning is gelegen in een rustige straat, om de hoek van een speelplantsoen in een nieuwbouwwijk aan de rand van Landhorst.
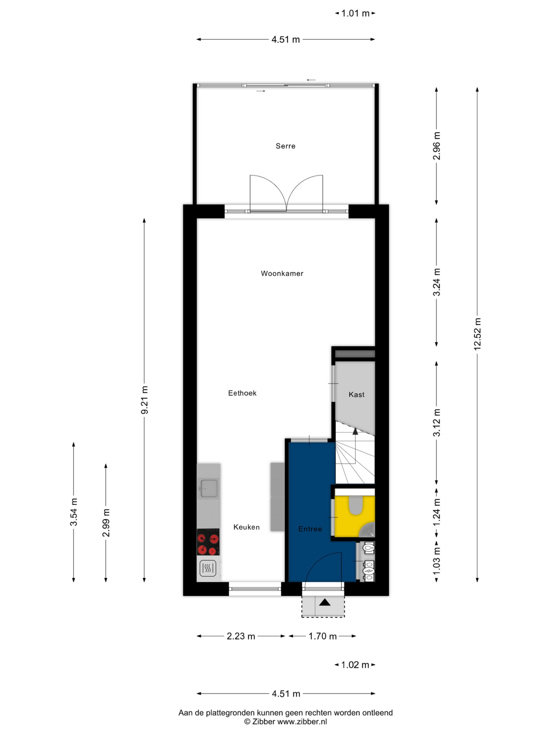
Indeling
Begane grond: entree/ hal, meterkast, toilet met fonteintje, open keuken met inbouwapparatuur, een tuingerichte woonkamer met trapkast en met toegang tot de aangebouwde serre.
1e verdieping: overloop, 2…
Starters opgelet!
Ben je op zoek naar een jonge, duurzame en onderhoudsvriendelijke woning? Dan is deze tussenwoning uit 2021 zeker een bezichtiging waard! De woning is uitstekend geïsoleerd, gasloos en beschikt over een zonnige achtertuin op het zuidoosten en een houten tuinberging met achterom. Deze moderne tussenwoning is gelegen in een rustige straat, om de hoek van een speelplantsoen in een nieuwbouwwijk aan de rand van Landhorst.
Indeling
Begane grond: entree/ hal, meterkast, toilet met fonteintje, open keuken met inbouwapparatuur, een tuingerichte woonkamer met trapkast en met toegang tot de aangebouwde serre.
1e verdieping: overloop, 2 ruime slaapkamers, badkamer voorzien van inloopdouche, vaste wastafel, toilet en designradiator.
2e verdieping: via een vaste trap te bereiken zolderverdieping met dakraam en afgesloten technische ruimte, eveneens met dakraam, de witgoedaansluitingen, WTW-unit en warmtepomp. De ruime zolderverdieping kan nog geheel naar eigen wens worden ingericht met bijvoorbeeld een extra slaapkamer.
Bijzonderheden:
De keuken is voorzien van de volgende apparatuur: inductiekookplaat, afzuigkap, combioven, vaatwasser en koelkast.
De gehele woning is voorzien van vloerverwarming en pvc-vloeren.
De woning is volledig geïsoleerd en voorzien van HR-beglazing.
Er zijn ruime parkeermogelijkheden aan de voorzijde van de woning.
Het Centrum van Mill, Boxmeer en van Wanroij & Sint Anthonis zijn binnen 5-10 autominuten bereikbaar.
“Natuurgebied Staatsbossen Sint Anthonis” is nabij gelegen.
De uitvalswegen A73, A77, N264 en N277 zijn zeer snel te bereiken.
Toon meer
Toon minder