Op een rustige en gewilde, kindvriendelijke woonlocatie gelegen vrijstaande geschakelde woning met een aangebouwde inpandig bereikbare garage. Moderne en sfeervolle indeling met aan de achterzijde o.a. een uitgebouwde woonkamer, die in halfopen verbinding staat met de keuken. De achtertuin biedt volop privacy en beschikt over een onlangs geplaatste tuinkamer met een houten berging.
Indeling:
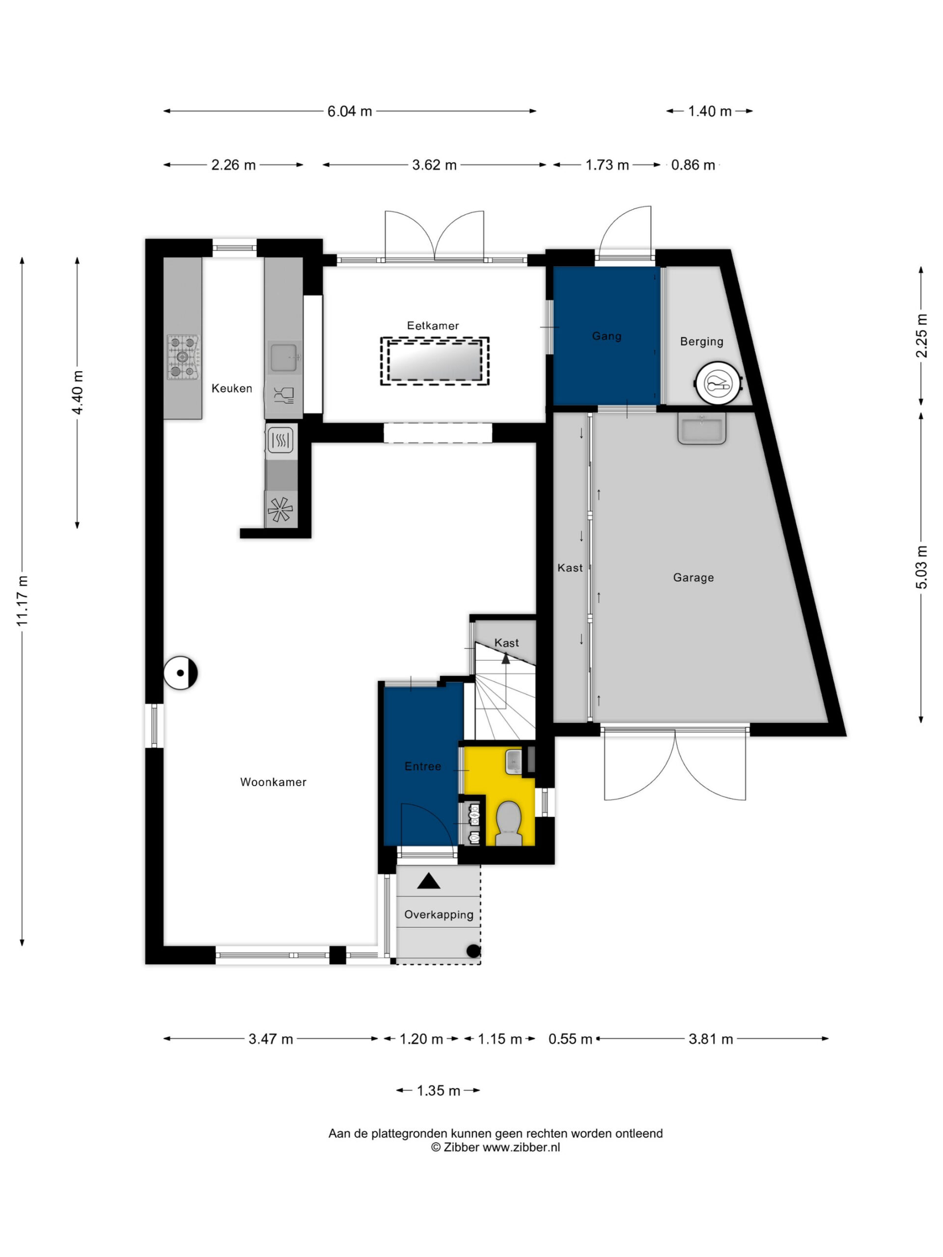
Begane grond: hal met vernieuwde meterkast en toilet met fonteintje. De speels ingedeelde woonkamer met een erker en houtkachel is aan de achterzijde uitgebouwd en voorzien van openslaande tuindeuren. De keuken staat in halfopen verbinding met deze woonkamer. Praktische bijkeuken met witgoedaansluitingen en aansluitend de…
Op een rustige en gewilde, kindvriendelijke woonlocatie gelegen vrijstaande geschakelde woning met een aangebouwde inpandig bereikbare garage. Moderne en sfeervolle indeling met aan de achterzijde o.a. een uitgebouwde woonkamer, die in halfopen verbinding staat met de keuken. De achtertuin biedt volop privacy en beschikt over een onlangs geplaatste tuinkamer met een houten berging.
Indeling:
Begane grond: hal met vernieuwde meterkast en toilet met fonteintje. De speels ingedeelde woonkamer met een erker en houtkachel is aan de achterzijde uitgebouwd en voorzien van openslaande tuindeuren. De keuken staat in halfopen verbinding met deze woonkamer. Praktische bijkeuken met witgoedaansluitingen en aansluitend de aangebouwde en ruime garage.
1e verdieping: overloop, 3 slaapkamers, een luxe badkamer (2019) voorzien van een inloopdouche, wastafel met meubel en wandcloset.
2e verdieping: via een vaste trap bereikbare zolder met over de gehele achterzijde een dakkapel, verder de opstelling van de cv-ketel en de aansluitingen t.b.v. het witgoed.
Diverse gegevens:
De keukenopstelling is voorzien van een 5-pits gaskookplaat, afzuigkap, oven, magnetron, koelkast en vaatwasser.
De cv-ketel is van het merk Nefit, bouwjaar 2017.
Royale inpandig te bereiken garage met schuifkastenwand en wastafel met meubel.
Sfeervolle tuinkamer met schuiframen en een praktische houten berging.
Er is een grondwaterpuls met beregeningsinstallatie aanwezig.
Een deel van de zij- en achtertuin is in bruikleen (middels een bruikleenovereenkomst) van de gemeente (zie oranje gearceerde gedeelte kadastrale kaart).
Gelegen op een gewilde woonlocatie, op loopafstand van de dorpsvoorzieningen.
Belangrijkste vaste lasten:
(volgens opgave huidige gebruiker)
Onroerendezaakbelasting: € 451,98 per jaar
Rioolrecht: € 262,44 per jaar
Afvalstoffenheffing: € 261,00 per jaar
Waterschapslasten: € 213,00 per jaar
Toon meer
Toon minder