Starters opgelet!
In de woonwijk "De Valuwe" ligt deze starterswoning met een L-vormige woonkamer en open keuken. De aangebouwde serre/ tuinkamer zorgt voor extra leefruimte en veel lichtinval. De woning biedt een goede basis, maar dient deels nog gemoderniseerd te worden; ideaal voor wie het geheel naar eigen smaak wil inrichten en afwerken. Een mooie kans voor starters die hun eigen thuis willen creëren!
Indeling:
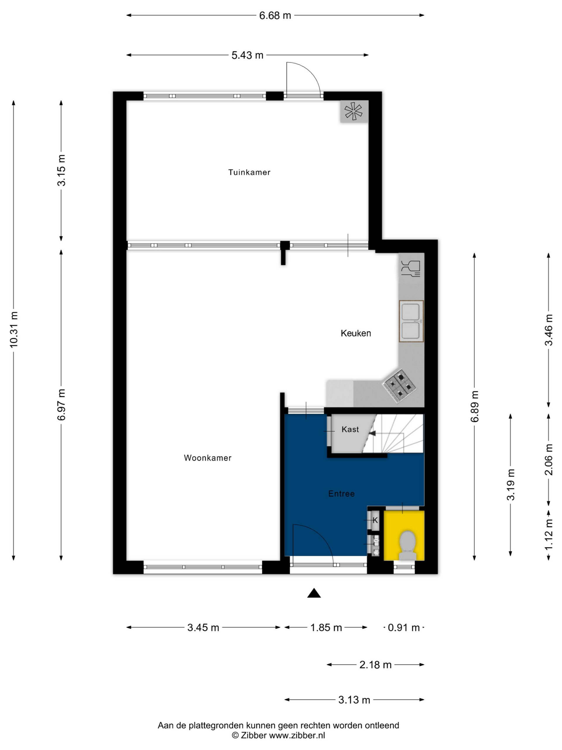
Begane grond: hal met bergruimte, kelderkast, gemoderniseerde meterkast en toilet met fonteintje. Een ruime woonkamer met veel lichtinval en een fraai uitzicht aan de voorzijde en een open keuken. Over de gehele achterzijde…
Starters opgelet!
In de woonwijk "De Valuwe" ligt deze starterswoning met een L-vormige woonkamer en open keuken. De aangebouwde serre/ tuinkamer zorgt voor extra leefruimte en veel lichtinval. De woning biedt een goede basis, maar dient deels nog gemoderniseerd te worden; ideaal voor wie het geheel naar eigen smaak wil inrichten en afwerken. Een mooie kans voor starters die hun eigen thuis willen creëren!
Indeling:
Begane grond: hal met bergruimte, kelderkast, gemoderniseerde meterkast en toilet met fonteintje. Een ruime woonkamer met veel lichtinval en een fraai uitzicht aan de voorzijde en een open keuken. Over de gehele achterzijde is een serre/ tuinkamer aangebouwd.
1e verdieping: overloop, 3 slaapkamers, badkamer voorzien van een ligbad, douchecabine, wandcloset en dubbele wastafel.
Diverse gegevens:
De keukenopstelling is voorzien van een 4-gaskookplaat, afzuigkap, koelkast, vaatwasser en combioven.
De cv-ketel is van het merk Nefit.
De meterkast is vernieuwd in .............. en er zijn 8 zonnepanelen met accupakket aanwezig.
Het "oude" energielabel is C, daarna zijn de 8 zonnepanelen met accupakket en airconditioning geïnstalleerd.
De begane grond en ouderslaapkamer zijn voorzien van airconditioning.
De achtertuin is voorzien van een dubbele berging.
Op fietsafstand gelegen van het centrum van Cuijk, het NS-station, de snelfietsroute naar Nijmegen en de uiterwaarden van "De Maas".
Belangrijkste vaste lasten:
(volgens opgave huidige gebruiker)
Onroerendezaakbelasting: € 289,00 per jaar
Rioolrecht: € 204,12 per jaar
Afvalstoffenheffing: € 271,80 per jaar
Waterschapslasten: € 142,00 per jaar
Toon meer
Toon minder