Dit lichte en ruime 3-kamerappartement van 80 m² met balkon, is gelegen op de 1e verdieping en biedt extra lichtinval en een fraai uitzicht over een "groene" omgeving en de Stoofweg. Hier woon je op een rustige locatie met op loopafstand het historische centrum van Grave, een supermarkt en het buitengebied.
Indeling:
Begane grond: centrale entree voorzien van een videofooninstallatie, een elektrische deuropener, het trappenhuis en de lift. Via de centrale hal is er toegang tot de ruime berging, tevens zijn in de centrale hal de brievenbussen gevestigd.
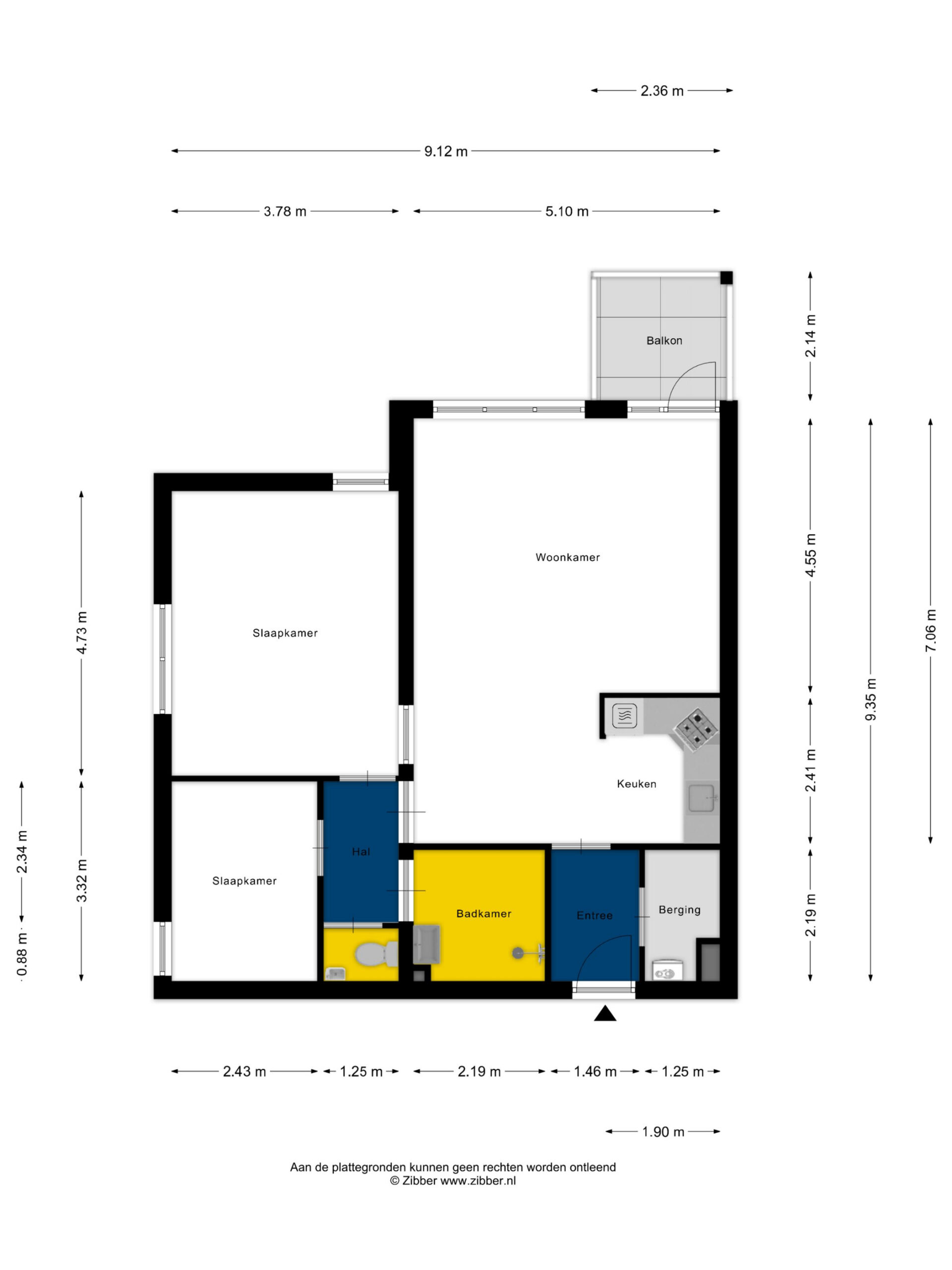
1e verdieping: entree appartement, hal, meterkast, een ruime cv-/ witgoedruimte.…
Dit lichte en ruime 3-kamerappartement van 80 m² met balkon, is gelegen op de 1e verdieping en biedt extra lichtinval en een fraai uitzicht over een "groene" omgeving en de Stoofweg. Hier woon je op een rustige locatie met op loopafstand het historische centrum van Grave, een supermarkt en het buitengebied.
Indeling:
Begane grond: centrale entree voorzien van een videofooninstallatie, een elektrische deuropener, het trappenhuis en de lift. Via de centrale hal is er toegang tot de ruime berging, tevens zijn in de centrale hal de brievenbussen gevestigd.
1e verdieping: entree appartement, hal, meterkast, een ruime cv-/ witgoedruimte. De sfeervolle woonkamer met toegang tot het balkon biedt veel lichtinval en een mooi en weids uitzicht. Open keuken in hoekopstelling en via een portaal heb je toegang tot 2 ruim bemeten slaapkamers, een separaat toilet met fonteintje en een zeer nette badkamer met een vaste wastafel en inloopdouche.
Diverse gegevens:
De keukenopstelling is voorzien van een koelkast, 4-pits gaskookplaat, afzuigkap en combimagnetron.
Goed geïsoleerd appartement.
Een privé berging op de begane grond.
Gelegen in een kleinschalig en goed onderhouden complex, aan de rand van de populaire woonwijk "De Stoof".
Hier woon je in alle rust, terwijl het historische centrum met alle voorzieningen, supermarkt, sporthal, medisch centrum, openbaar vervoer en het buitengebied op loopafstand liggen.
Belangrijkste vaste lasten:
(volgens opgave huidige gebruiker)
Onroerendezaakbelasting: € 287,92 per jaar
Rioolrecht: € 262,44 per jaar
Afvalstoffenheffing: € 261,00 per jaar
Waterschapslasten: € 251,84 per jaar
Servicekosten: € 179,70 per maand
Toon meer
Toon minder