Ruim bemeten 3-kamerappartement van maar liefst 92 m², gelegen op de begane grond in het appartementencomplex " 't Loo", op korte loopafstand van het centrum en nabij het NS-station. Met een vrij uitzicht en een ideale zonligging, is het een fijne woonlocatie. Het appartement beschikt in de parkeerkelder over een eigen parkeerplaats en een privé berging.
Indeling:
Souterrain: parkeergarage met een eigen parkeerplaats en privé berging voorzien van elektra.
Begane grond: een zeer nette gezamenlijke entree met videofooninstallatie, elektrische deuropener, lift, trappenhuis en brievenbussen.
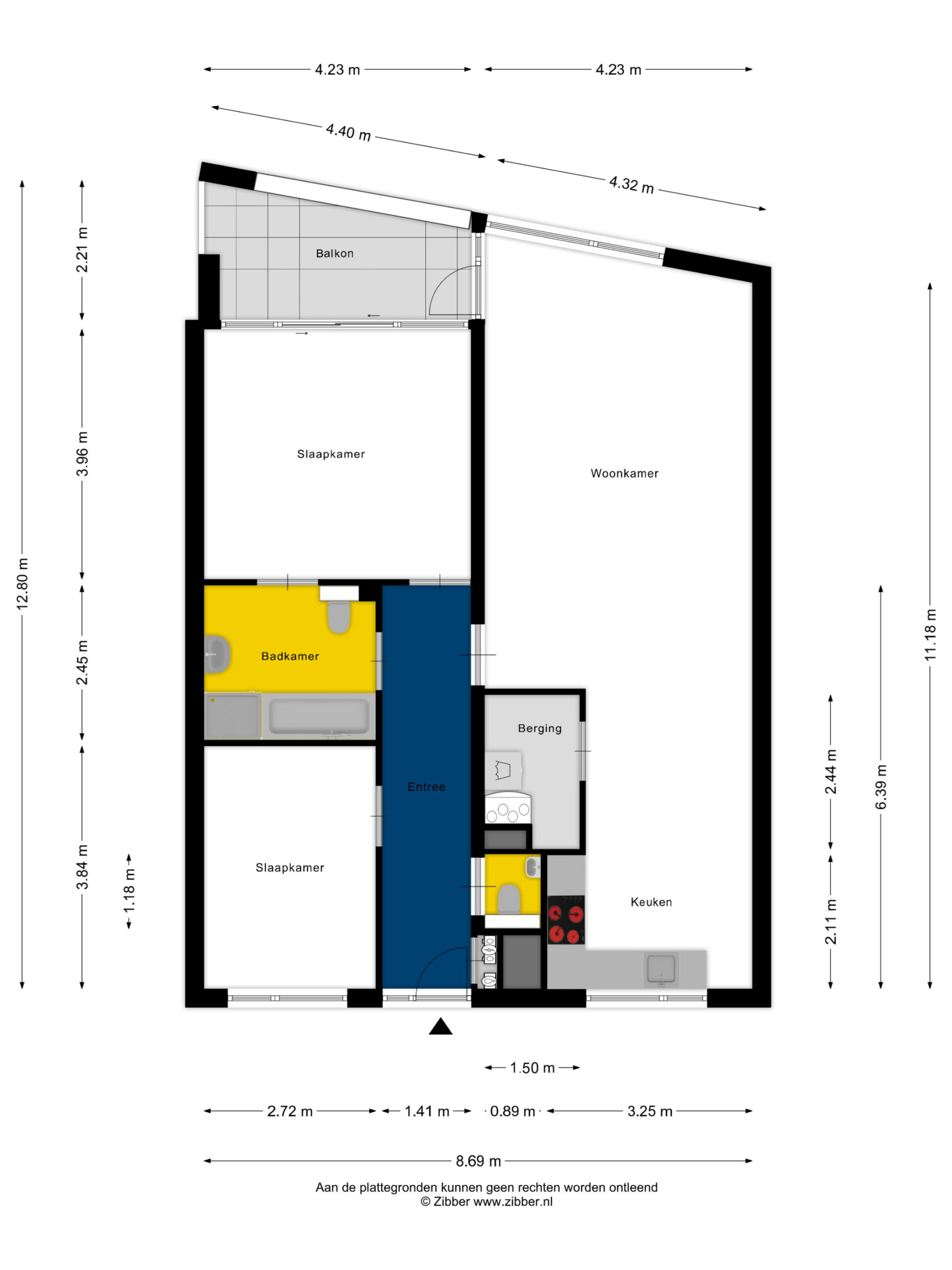
Appartement: hal met meterkast en toilet met fonteintje. Een ruime en lichte woonkamer…
Ruim bemeten 3-kamerappartement van maar liefst 92 m², gelegen op de begane grond in het appartementencomplex " 't Loo", op korte loopafstand van het centrum en nabij het NS-station. Met een vrij uitzicht en een ideale zonligging, is het een fijne woonlocatie. Het appartement beschikt in de parkeerkelder over een eigen parkeerplaats en een privé berging.
Indeling:
Souterrain: parkeergarage met een eigen parkeerplaats en privé berging voorzien van elektra.
Begane grond: een zeer nette gezamenlijke entree met videofooninstallatie, elektrische deuropener, lift, trappenhuis en brievenbussen.
Appartement: hal met meterkast en toilet met fonteintje. Een ruime en lichte woonkamer met een deur naar het balkon. De open hoekkeuken is aan de achterzijde gesitueerd, provisieberging met de opstelling van de cv-ketel en de aansluitingen t.b.v. het witgoed en de WTW-unit. Badkamer voorzien van een wastafel, ligbad, douche en toilet. Twee ruime slaapkamers, waarvan er 1 middels een schuifpui toegang heeft tot het balkon.
Diverse gegevens:
De keukenapparatuur bestaat uit een inductiekookplaat, afzuigkap en spoelbak.
De cv-ketel is van het merk Intergas, bouwjaar .............
Het appartement is uitstekend geïsoleerd en voorzien van een ventilatiesysteem.
Het zonnige balkon is op het westen gelegen.
Er is een eigen parkeerplaats (nr. 66) in de parkeerkelder.
Gelegen op loopafstand van het centrum van Cuijk en op enkele autominuten van de snelweg A73 richting Nijmegen-Venlo.
Verkoper attendeert hierbij koper op het feit dat hij het verkochte zelf feitelijk niet heeft gebruikt en dat hij derhalve koper niet heeft kunnen informeren over eigenschappen c.q. gebreken aan het object waarvan hij op de hoogte zou zijn geweest als hij het verkochte zelf feitelijk had gebruikt.
De projectnotaris is Notariskantoor Cuijk.
Toon meer
Toon minder