Unieke vrijstaande woning met fraai aangelegde tuin en vijver. Binnen word je verrast met speelse hoogte verschillen. Het geheel ademt een bijzondere woonbeleving met veel ruimte, lichtinval en een open indeling. Geniet van de zonnige achtertuin met ruim overdekt terras en optimale privacy. De woning is volledig gemoderniseerd en instap klaar.
Indeling:
Ervaar bij binnenkomst de fraaie entree met garderobe. Hier zijn ook het toilet en de meterkast. Hierna kom je in de lichte en comfortabele woonkeuken. Het open karakter naar de woonkamer en het souterrain is van een bijzondere architectuur. Via de schuifpui is de uitnodigende verbinding met…
Unieke vrijstaande woning met fraai aangelegde tuin en vijver. Binnen word je verrast met speelse hoogte verschillen. Het geheel ademt een bijzondere woonbeleving met veel ruimte, lichtinval en een open indeling. Geniet van de zonnige achtertuin met ruim overdekt terras en optimale privacy. De woning is volledig gemoderniseerd en instap klaar.
Indeling:
Ervaar bij binnenkomst de fraaie entree met garderobe. Hier zijn ook het toilet en de meterkast. Hierna kom je in de lichte en comfortabele woonkeuken. Het open karakter naar de woonkamer en het souterrain is van een bijzondere architectuur. Via de schuifpui is de uitnodigende verbinding met het overdekt terras en het uitzicht op de achtertuin met de kabbelende waterval.
De moderne keuken is voorzien van alle nodige inbouwapparatuur. Aan de fijne bar kun je lekker lezen, werken of eten alleen of met tweeën; aan de grote eettafel kun je met het gezin of gasten heerlijk tafelen. Handig en praktisch ingericht is de ruimte naast de keuken waar de witgoed aansluitingen zitten. Hier zijn ook de hoog rendement cv-ketel, de vloerwarming en het heteluchtverwarmingssysteem.
Ruimte en rust biedt de woonkamer als het kloppende hart van het huis. Geniet hier met een glaasje bij de gashaard. Een warme en sfeervolle ruimte met verrassende plafonds. De halfopen verbinding met de studie-, speel- of hobbyruimte zal u verbazen.
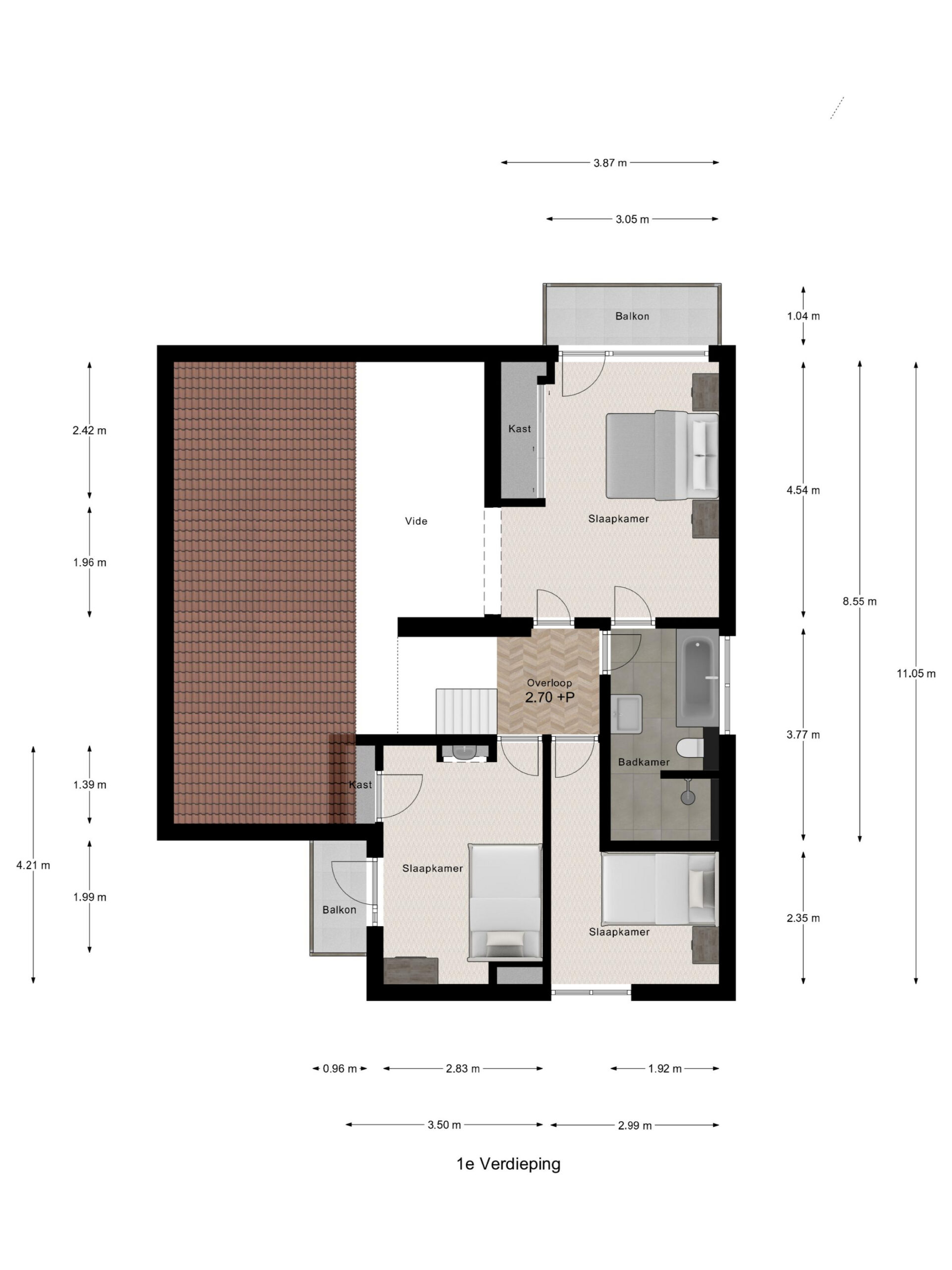
Het open karakter van de overloop geeft nog maar weer eens aan met welke speelsheid de architect hier zijn werk heeft gedaan. De masterbedroom heeft een slimme inbouwkast. De deur naar het balkon zorgt voor het uitzicht naar de fraaie achtertuin.
De slaapkamers aan de voorzijde zijn met een entresol voor extra bergruimte. Het balkon en een wasbak is extra op één slaapkamer.
De badkamer is met oog voor detail ontworpen. Een heerlijk whirlpool ligbad om te ontspannen. Een ruime inloopdouche en een wastafelmeubel met kast. Het toilet en de vloerverwarming maken baden en wassen comfortabel.
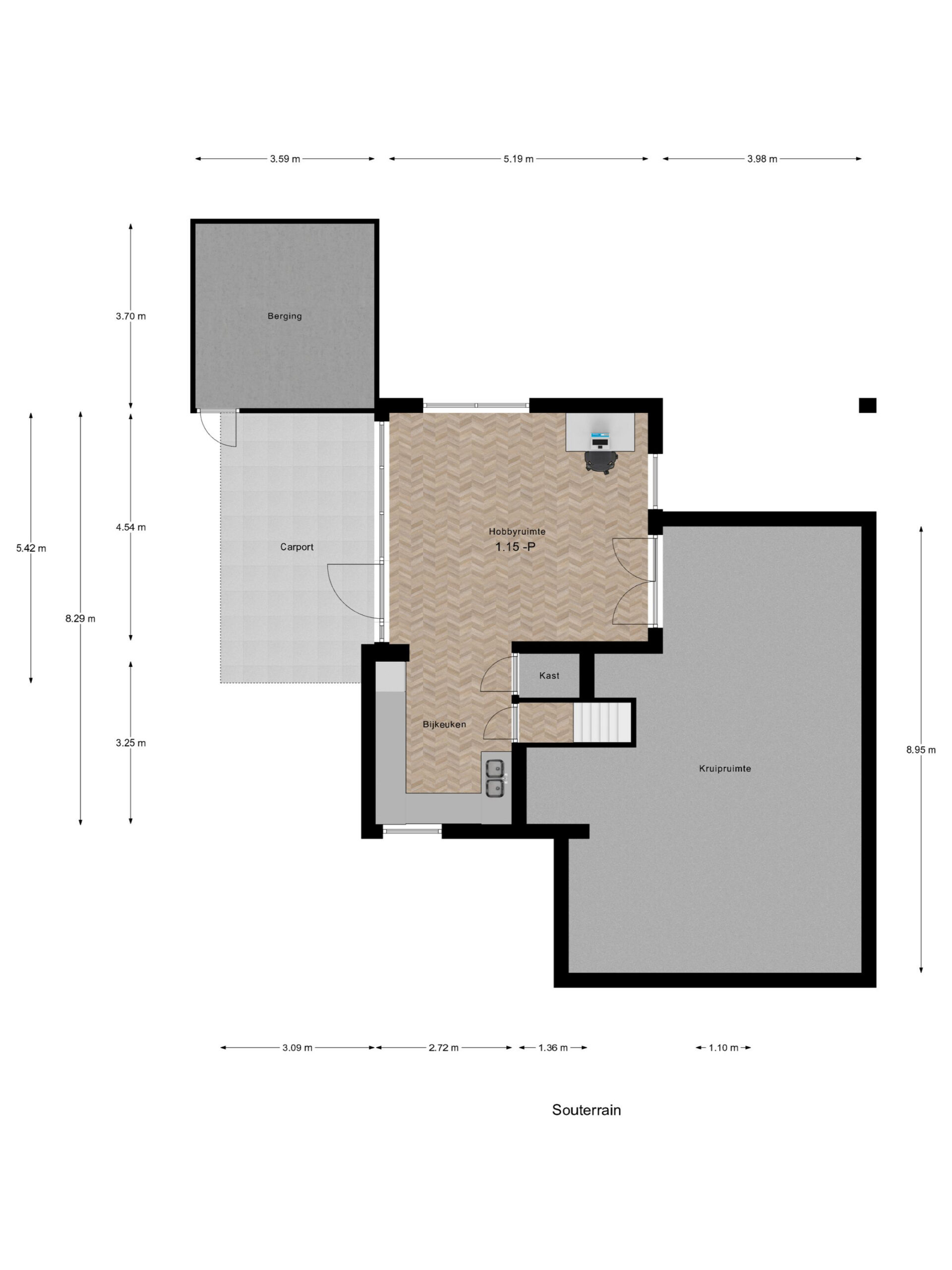
Vanaf de eetkamer is er de extra woonlaag naar het souterrain. De toegang naar de grote garage/ berging. De ideale plek om meerdere fietsen te stallen en uw gereedschap veilig op te bergen. Een compleet keukenblok en werkbank staan hier klaar om alle denkbare hobby’s uit te oefenen. Brede deuren naar de betegelde kruipruimte bieden veel extra bergruimte. De pomp is er voor de ondergronds aangelegde regeninstallatie van de voor- en achtertuin. De brede deur geeft toegang naar carport en inrit. Aan de carport is de buitenberging voor aanhanger en tuingereedschap. In de achtertuin is de plantenkas die tevens bruikbaar is voor de opslag van tuinmeubilair.
Highlights:
- Goed onderhouden vrijstaande woning
- Bijzondere binnenhuis architectuur
- Vloerverwarming begane grond en badkamer
- Kunststof kozijnen en HR++ beglazing
- Geheel geïsoleerd: vloer, dak en spouwmuren
- Centraal stofzuigsysteem
- Sierbestrating en tuinverlichting
- Scholen en winkels op fietsafstand
- Goede verbindingen, A73 en A77 nabij
- Geniet van recreatie, natuur en de Staatsbossen
Belangrijkste vaste lasten
(volgens opgave huidige gebruiker):
Onroerendezaakbelasting: € 550,65 per jaar
Rioolheffing: € 70,44 per jaar
Afvalstoffenheffing: € 261,00 per jaar
Waterschapslasten: € 146,00 per jaar
Toon meer
Toon minder