In een bosrijke omgeving, aan de rand van woonwijk "De Padbroek" gelegen, uitstekend onderhouden riant vrijstaand woonhuis met dubbele inpandig te bereiken garage op een perceel van maar liefst 980 m². Deze riante gezinswoning beschikt over een slaapkamer en een luxe badkamer op de begane grond, waardoor levensloopbestendig wonen mogelijk is. Op korte afstand van alle dagelijkse voorzieningen en het centrum van Cuijk met o.a. restaurants, supermarkten, huisarts en het NS-station, aan de achterzijde is de woning heerlijk vrij gelegen.
Indeling:
Begane grond: entree/ hal met vide, meterkast en moderne toiletruimte, voorzien van wandcloset en fonteintje, L-vormige woonkamer…
In een bosrijke omgeving, aan de rand van woonwijk "De Padbroek" gelegen, uitstekend onderhouden riant vrijstaand woonhuis met dubbele inpandig te bereiken garage op een perceel van maar liefst 980 m². Deze riante gezinswoning beschikt over een slaapkamer en een luxe badkamer op de begane grond, waardoor levensloopbestendig wonen mogelijk is. Op korte afstand van alle dagelijkse voorzieningen en het centrum van Cuijk met o.a. restaurants, supermarkten, huisarts en het NS-station, aan de achterzijde is de woning heerlijk vrij gelegen.
Indeling:
Begane grond: entree/ hal met vide, meterkast en moderne toiletruimte, voorzien van wandcloset en fonteintje, L-vormige woonkamer met open haard, vloerverwarming en schuifpui naar de sfeervolle serre. Een woonkeuken voorzien van alle benodigde inbouwapparatuur, ruime slaapkamer op de begane grond en luxe en moderne badkamer voorzien van inloopdouche met regendouche/ sunshower, wandcloset, dubbele wastafel met meubel, designradiator en elektrische vloerverwarming. Praktische bijkeuken met toegang tot het kantoor/ speelkamer, berging met witgoedaansluitingen en een spoelbak. De dubbele garage is eveneens inpandig bereikbaar.
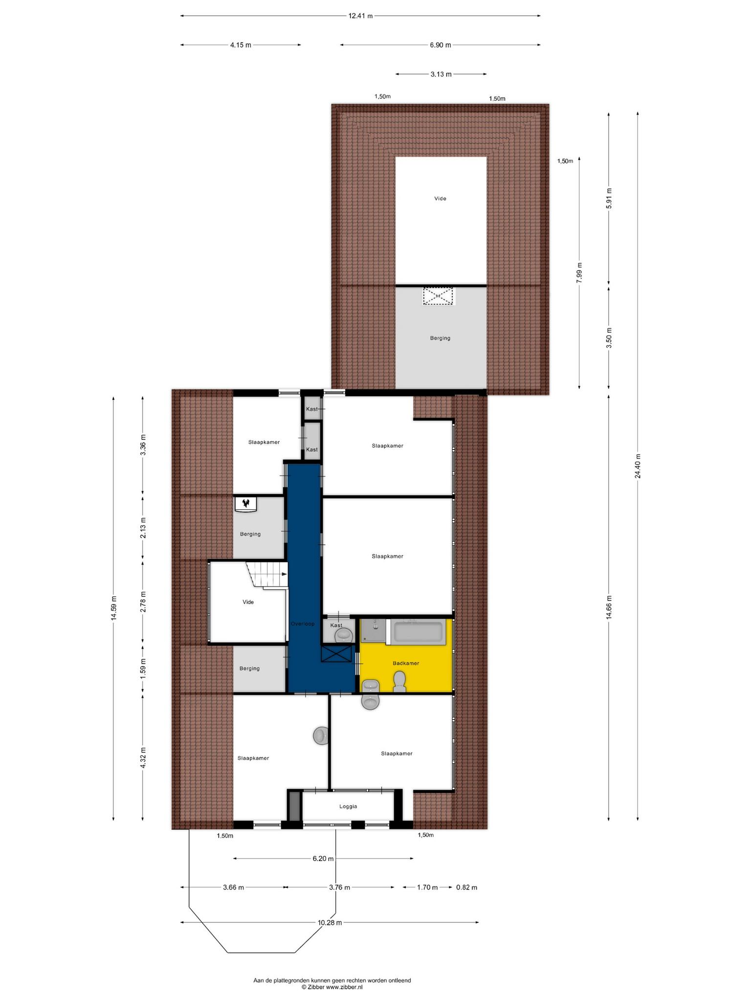
1e verdieping: overloop/ vide, 5 slaapkamers, waarbij alle slaapkamers aan de achterzijde voorzien zijn van een riante dakkapel, de badkamer is nog nader af te werken, maar voorzien van ligbad, douchecabine, wastafel en toilet, een aparte cv-ruimte met de cv-opstelling en bergruimte.
Zolderverdieping: via een vlizotrap bereikbaar en biedt volop bergruimte.
Diverse gegevens:
De fraaie keukeninrichting is voorzien van inductiekookplaat, afzuigkap, koelkast, oven, vaatwasser en dubbele spoelbak.
De HR-combiketel is van het merk Remeha, bouwjaar 2021. In de cv-ruimte bevinden zich enkele eternitplaten.
De woning is volledig geïsoleerd en beschikt deels over kunststof kozijnen met dubbel glas en deels hardhouten kozijnen, de serre is van aluminium. De achterbouw en de kantoordeur zijn nog voorzien van enkelglas.
De dakkapel aan de achterzijde is voorzien van elektrische rolluiken.
Dubbele inpandige garage, voorzien van verwarming en elektra.
De achterzijde van de woning is voorzien van een dakkapel over de gehele breedte van de woning.
De woning is voorzien van 11 zonnepanelen.
Er is een grondwaterpuls aanwezig voor het beregenen van de tuin, een fraai aangelegde vijver en een houten tuinhuis.
De dagelijkse voorzieningen, zoals een basisschool, middelbare school, kinderopvang en de supermarkt zijn in de directe omgeving aanwezig en binnen enkele minuten bereikt u de A73.
Belangrijkste vaste lasten
(volgens opgave huidige gebruiker):
Onroerendezaakbelasting: € 624,- per jaar
Rioolheffing en afvalstoffenheffing: € 410,- per jaar
Waterschapslasten: € 292,- per jaar
Toon meer
Toon minder