Bent u op zoek naar een levensloopbestendige woning met veel ruimte? Plan dan een bezichtiging bij deze woning!
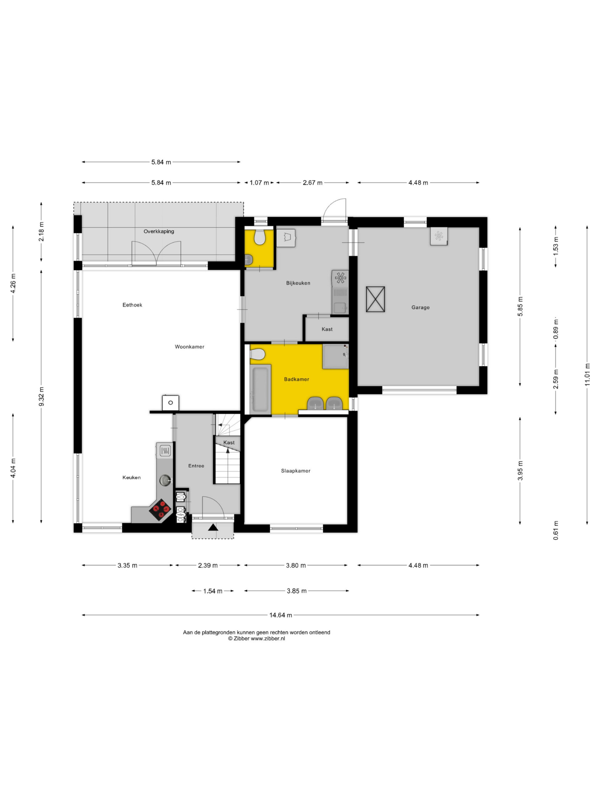
De woning is gebouwd in 2003, heeft een woonoppervlak van 159 m² en een garage (overig inpandige ruimte) van 32 m², is goed geïsoleerd en heeft een ruime slaapkamer met bijbehorende badkamer op de begane grond. De tuin op het zuidoosten ligt beschut, is onderhoudsvriendelijk en bereikbaar via de tuindeur of de achterom.
Indeling:
Begane grond: entree/ hal met toegang tot de keuken. Via de keuken kom je in de woonkamer, vanuit de woonkamer is de bijkeuken bereikbaar met de…
Bent u op zoek naar een levensloopbestendige woning met veel ruimte? Plan dan een bezichtiging bij deze woning!
De woning is gebouwd in 2003, heeft een woonoppervlak van 159 m² en een garage (overig inpandige ruimte) van 32 m², is goed geïsoleerd en heeft een ruime slaapkamer met bijbehorende badkamer op de begane grond. De tuin op het zuidoosten ligt beschut, is onderhoudsvriendelijk en bereikbaar via de tuindeur of de achterom.
Indeling:
Begane grond: entree/ hal met toegang tot de keuken. Via de keuken kom je in de woonkamer, vanuit de woonkamer is de bijkeuken bereikbaar met de naastgelegen badkamer en de daar aangrenzende slaapkamer. In de bijkeuken zijn de witgoedaansluitingen, het toilet en de toegang tot de garage.
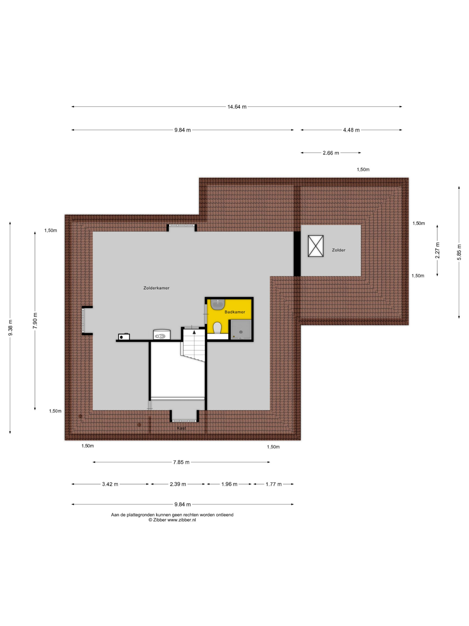
1e verdieping: via een vaste trap bereikbaar grote open zolderverdieping met 3 dakkapellen en 2e badkamer. Op de zolderverdieping is het mogelijk om extra slaapkamers te creëren.
Boven de garage is nog een ruime bergzolder beschikbaar, die via de vlizotrap toegankelijk is.
Diverse gegevens:
De keukenopstelling is voorzien van een koelkast (2024), vaatwasser (2025), combimagnetron en inductiekookplaat (2024) met afzuigkap.
De begane grond is grotendeels voorzien van vloerverwarming, de woonkamer beschikt over een gaskachel.
De woning is voorzien van vloer-, muur- en dakisolatie en kunststof kozijnen met isolerend glas.
De cv-ketel is van het merk Atag, bouwjaar 2003.
De badkamer op de begane grond is voorzien van een ligbad, douche, toilet en dubbele wastafel.
De 2e badkamer op de verdieping is voorzien van een douche toilet en vaste wastafel.
Er is een sproei-installatie en grondwaterpuls met pomp aanwezig.
Landhorst staat garant voor heerlijk vrij en rustig wonen met een fijne ligging ten opzichte van omliggende steden, zoals Uden, Helmond en Nijmegen. Landhorst is een dorp in de gemeente Land van Cuijk in de provincie Noord-Brabant. Het kerkdorp is gelegen op de voormalige Wanroijse Peel tussen de dorpen Wanroij en Sint Anthonis. Met de auto bereikt u in korte tijd Gemert (15 min.), Uden (20 min.), Helmond en Nijmegen (30 min.).
De centra van Mill, Boxmeer, Wanroij & Sint Anthonis zijn binnen 5-10 autominuten bereikbaar.
Natuurgebied "Staatsbossen Sint Anthonis” is nabijgelegen (ca. 100m), de uitvalswegen A73, A77, N264 en N277 zijn ook zeer goed te bereiken.
Belangrijkste vaste lasten:
(volgens opgave huidige gebruiker)
Onroerendezaakbelasting: € 531,56 per jaar
Rioolrecht: € 262,44 per jaar
Afvalstoffenheffing: € 261,00 per jaar
Waterschapslasten: € 296,87 per jaar
Toon meer
Toon minder