In een rustige en kindvriendelijke woonwijk, van het dorp Sint Anthonis, ligt deze goed onderhouden en gemoderniseerde tussenwoning met een prettige sfeer en volop wooncomfort. De woning beschikt aan de voorzijde over een aangebouwde stenen berging en de zonnige privacybiedende achtertuin is gelegen op het zuidwesten, waardoor het er heerlijk vertoeven is. De dagelijkse voorzieningen zijn op korte afstand gelegen; een ideale woning voor starters of jonge gezinnen, die op zoek zijn naar rust, ruimte en een fijne woonomgeving in het mooie Sint Anthonis.
Indeling:
Begane grond: entree/ hal met meterkast, toiletruimte en een praktische bijkeuken, met een…
In een rustige en kindvriendelijke woonwijk, van het dorp Sint Anthonis, ligt deze goed onderhouden en gemoderniseerde tussenwoning met een prettige sfeer en volop wooncomfort. De woning beschikt aan de voorzijde over een aangebouwde stenen berging en de zonnige privacybiedende achtertuin is gelegen op het zuidwesten, waardoor het er heerlijk vertoeven is. De dagelijkse voorzieningen zijn op korte afstand gelegen; een ideale woning voor starters of jonge gezinnen, die op zoek zijn naar rust, ruimte en een fijne woonomgeving in het mooie Sint Anthonis.
Indeling:
Begane grond: entree/ hal met meterkast, toiletruimte en een praktische bijkeuken, met een middels vlizotrap bereikbare bergzolder, aan de voorzijde van de woning. De ruime en lichte woonkamer biedt veel sfeer en staat in open verbinding met de luxe, in 2021, ingerichte keukeninrichting.
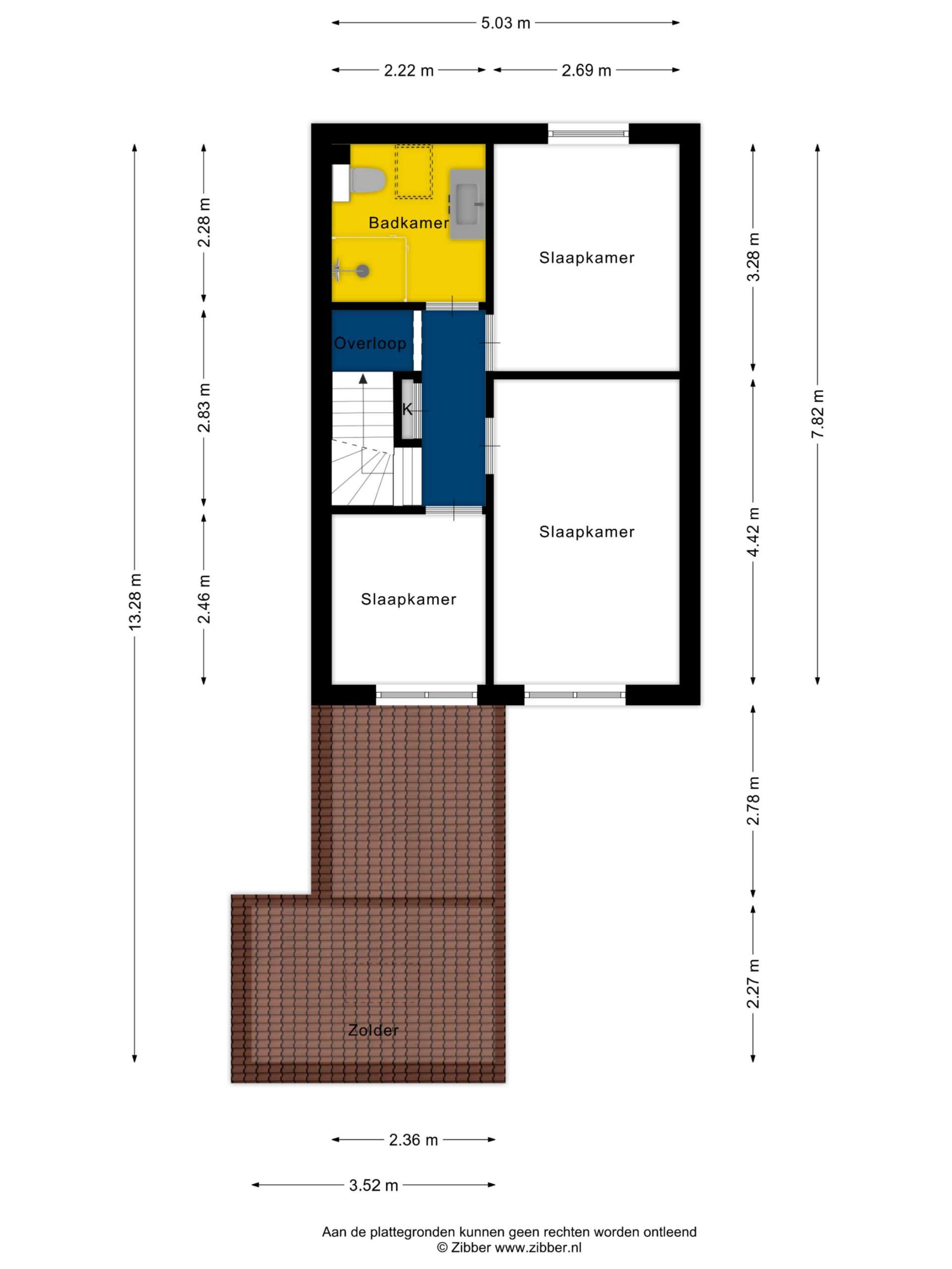
1e verdieping: overloop met toegang tot de 3 ruime slaapkamers en moderne badkamer voorzien van een inloopdouche, wandcloset en wastafel met badmeubel.
2e verdieping: praktische voorzolder met cv-ruimte en een 4e slaap-/ werkkamer met dakvenster.
Diverse gegevens:
De moderne en luxe keukenopstelling (2021) bestaat uit een inductiekookplaat, afzuigkap, vaatwasser, combimagnetron en koelkast.
De begane grond is voorzien van vloerverwarming.
De meterkast is vernieuwd in 2021.
De HR-combiketel is van het merk Atag, bouwjaar 2021.
Moderne en luxe ingerichte badkamer (2021).
Het buitenschilderwerk is in 2024 vernieuwd.
De woning beschikt over dak,- en muurisolatie en grotendeels HR++ glas.
Een gunstig op de zon gelegen achtertuin.
Op korte loopafstand gelegen van de dorpsvoorzieningen.
Belangrijkste vaste lasten:
(volgens opgave huidige gebruiker)
Onroerendezaakbelasting: € 308,00 per jaar
Rioolrecht: € 262,44 per jaar
Afvalstoffenheffing: € 261,00 per jaar
Waterschapslasten: € 232,00 per jaar
Toon meer
Toon minder