Dit recent gemoderniseerde 3-kamerappartement op de eerste verdieping biedt alles wat je nodig hebt! De woning beschikt over een lichte woonkamer, open moderne en luxe keuken en een zeer fraaie badkamer. Vanuit de woonkamer is een loggia bereikbaar en vanuit de slaapkamer een ruim dakterras beiden met een prachtig uitzicht op het water waar je volop kunt ontspannen en genieten van de zon. Daarnaast beschikt het appartement over een berging en privé parkeerplaats. Op korte afstand van alle dagelijkse voorzieningen, zoals o.a. een supermarkt, basisschool en de Lavendelkade. Vanuit het appartement wandel je ook zo het natuurgebied rondom "De Kraaijenbergse…
Dit recent gemoderniseerde 3-kamerappartement op de eerste verdieping biedt alles wat je nodig hebt! De woning beschikt over een lichte woonkamer, open moderne en luxe keuken en een zeer fraaie badkamer. Vanuit de woonkamer is een loggia bereikbaar en vanuit de slaapkamer een ruim dakterras beiden met een prachtig uitzicht op het water waar je volop kunt ontspannen en genieten van de zon. Daarnaast beschikt het appartement over een berging en privé parkeerplaats. Op korte afstand van alle dagelijkse voorzieningen, zoals o.a. een supermarkt, basisschool en de Lavendelkade. Vanuit het appartement wandel je ook zo het natuurgebied rondom "De Kraaijenbergse Plassen" in.
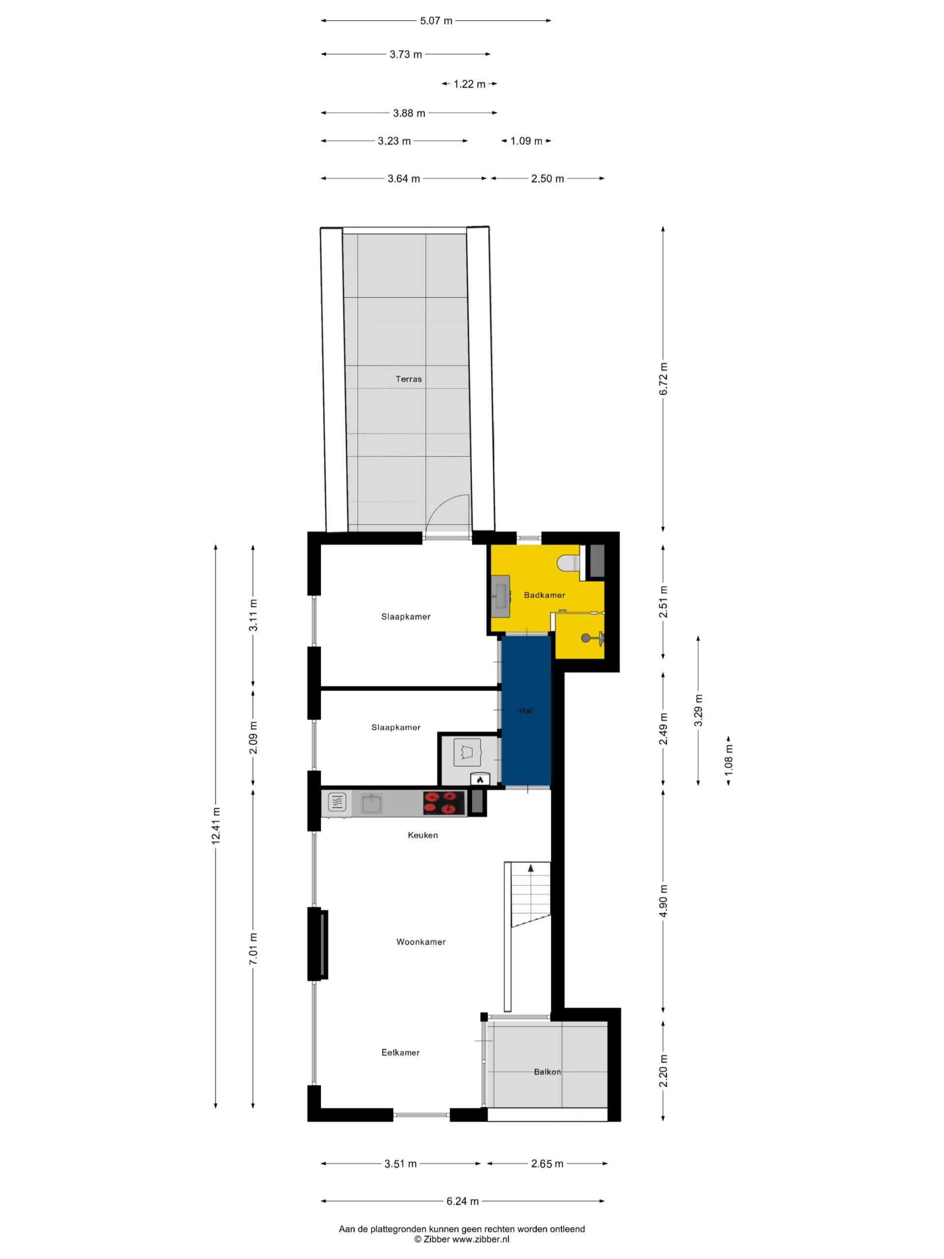
Indeling:
Begane grond: gezamenlijk entree met trapopgang naar de woning en toegang tot de berging.
1e verdieping: Middels je eigen trapopgang vanuit de gezamenlijke entree bereik je het appartement, lichte woonkamer met vele raampartijen, toegang tot de loggia en open keuken voorzien van de benodigde inbouwapparatuur, hal met inpandige bergruimte voorzien van de cv-opstelling en meterkast, 2 slaapkamers waarbij de grote slaapkamer toegang geeft tot het dakterras, moderne en luxe badkamer voorzien van een regendouche, wandcloset, vloerverwarming en wastafel.
Diverse gegevens:
De keukeninrichting bestaat uit een: koelkast, vriezer, vaatwasser, inductiekookplaat met geïntegreerde afzuiging, combi-oven, Quooker.
De cv-ketel is van het merk Intergas, bouwjaar 2012.
De woning is volledig geïsoleerd.
In 2022 is de woning gemoderniseerd en geschilderd.
De woning beschikt over een berging op de begane grond en een parkeerplaats op het gezamenlijke binnenterrein.
De VVE-kosten bedragen ca. € 150,- per maand.
De woning ligt in een rustige en kindvriendelijke wijk gekenmerkt door veel water. Verdere voorzieningen zoals een school, fysio, supermarkt en recreatieplas bevinden zich op loopafstand.
Belangrijkste vaste lasten:
(volgens opgave huidige gebruiker)
Onroerendezaakbelasting: € 292,- per jaar
Rioolrecht: € 256,- per jaar
Afvalstoffenheffing: € 223,- per jaar
Waterschapslasten: € 357,- per jaar
Toon meer
Toon minder