Tegen het centrum van Cuijk gelegen goed onderhouden 2-kamerappartement met een terras, berging en eigen parkeerplaats in de afgesloten parkeerkelder. In het complex bevindt zich een liftinstallatie. Op loopafstand liggen supermarkten, winkels, het NS-treinstation en overige gebruikelijke voorzieningen en diensten, denk hierbij o.a. aan huisarts, apotheek, fysiotherapeut, schouwburg, bioscoop en kapper.
Indeling:
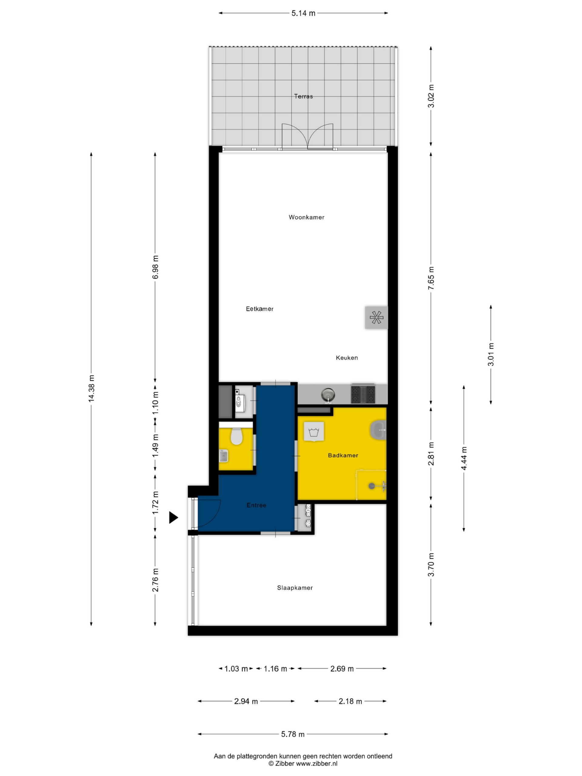
Begane grond: centrale entree met bellentableau, brievenbussen, lift en trappenhuis.
Eigen entree/ hal met toilet, ruime slaapkamer, badkamer voorzien van een douche, vaste wastafel en wasmachine-aansluiting. Woonkamer met een open keuken, voorzien van diverse inbouwapparatuur. Via de openslaande deuren in de woonkamer kom je op…
Tegen het centrum van Cuijk gelegen goed onderhouden 2-kamerappartement met een terras, berging en eigen parkeerplaats in de afgesloten parkeerkelder. In het complex bevindt zich een liftinstallatie. Op loopafstand liggen supermarkten, winkels, het NS-treinstation en overige gebruikelijke voorzieningen en diensten, denk hierbij o.a. aan huisarts, apotheek, fysiotherapeut, schouwburg, bioscoop en kapper.
Indeling:
Begane grond: centrale entree met bellentableau, brievenbussen, lift en trappenhuis.
Eigen entree/ hal met toilet, ruime slaapkamer, badkamer voorzien van een douche, vaste wastafel en wasmachine-aansluiting. Woonkamer met een open keuken, voorzien van diverse inbouwapparatuur. Via de openslaande deuren in de woonkamer kom je op het privé-gelegen terras.
Diverse gegevens:
De keukenopstelling is voorzien van een gaskookplaat met afzuigkap en een combioven. Het appartement is volledig geïsoleerd en voorzien van mechanische ventilatie.
Er is een eigen parkeerplaats aanwezig in de afgesloten parkeerkelder en een eigen berging waar bijvoorbeeld de fietsen gestald kunnen worden.
Perfect gelegen tegen het centrum van Cuijk, nabij alle dagelijkse voorzieningen.
Er is een actieve VvE aanwezig. De maandelijkse bijdrage voor de VvE bedraagt € 214,93.
Belangrijkste vaste lasten:
(volgens opgave huidige gebruiker)
Onroerendezaakbelasting: € 378,77 per jaar
Rioolrecht: € 197,40 per jaar
Afvalstoffenheffing: € 261,00 per jaar
Toon meer
Toon minder