Deze fraaie en modern ingerichte halfvrijstaande woning met een vrijstaande garage, carport en een zonnige tuin op het zuiden, is in de dorpskern en nabij alle dagelijkse voorzieningen gelegen. De woning is de afgelopen jaren goed onderhouden waarbij onder andere de badkamer, alle kozijnen en de meterkast vernieuwd zijn. Een keurig afgewerkt, sfeervol woonhuis gelegen in een rustige en kindvriendelijke woonomgeving!!
Indeling:
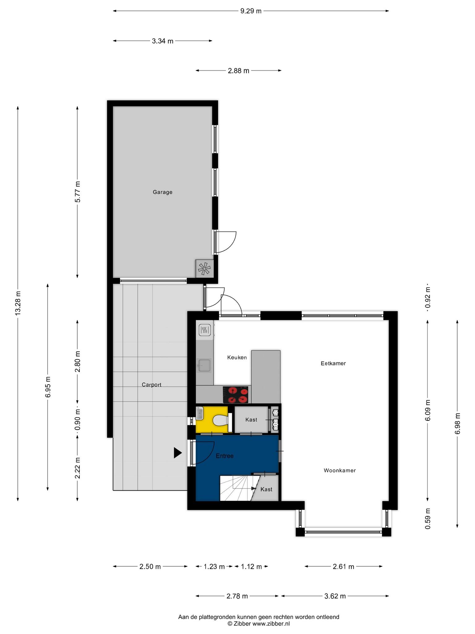
Begane grond: hal met vernieuwde meterkast, praktische trapkast, nieuw ingerichte toiletruimte met wandcloset en fonteintje. Woonkamer met een royale erker en een laminaat vloer en aansluitend een open keuken met een moderne en complete keukeninrichting.
1e…
Deze fraaie en modern ingerichte halfvrijstaande woning met een vrijstaande garage, carport en een zonnige tuin op het zuiden, is in de dorpskern en nabij alle dagelijkse voorzieningen gelegen. De woning is de afgelopen jaren goed onderhouden waarbij onder andere de badkamer, alle kozijnen en de meterkast vernieuwd zijn. Een keurig afgewerkt, sfeervol woonhuis gelegen in een rustige en kindvriendelijke woonomgeving!!
Indeling:
Begane grond: hal met vernieuwde meterkast, praktische trapkast, nieuw ingerichte toiletruimte met wandcloset en fonteintje. Woonkamer met een royale erker en een laminaat vloer en aansluitend een open keuken met een moderne en complete keukeninrichting.
1e verdieping: overloop, 3 ruime slaapkamers, luxe badkamer voorzien van een inloopdouche, wastafel met badmeubel en wandcloset, aansluitingen t.b.v. het witgoed en radiator.
2e verdieping: vlizotrap naar de bergzolder (met een mogelijkheid voor een 4e slaapkamer).
Diverse gegevens:
De keukenopstelling is voorzien van een 5-pits inductiekookplaat, afzuigkap, koelkast, quooker, combi-stoomoven, vaatwasser en spoelbak.
De meterkast is onlangs vernieuwd.
De cv-ketel is van het merk Nefit, bouwjaar 2016.
De woning is goed geïsoleerd en voorzien van nieuwe kunststof kozijnen met dubbel glas.
Er is airconditioning aanwezig in de woonkamer en overloop op de 1e verdieping.
De tuin biedt veel privacy.
Er is een ruime hobbygarage met carport.
Op loopafstand gelegen van alle voornaamste dorpsvoorzieningen.
Belangrijkste vaste lasten
(volgens opgave huidige gebruiker):
Onroerendezaakbelasting: € 283,55 per jaar
Rioolheffing: € 256,36 per jaar
Afvalstoffenheffing: € 223,56 per jaar
Waterschapslasten: € 196,- per jaar
Toon meer
Toon minder