Centraal in het dorp gelegen, uitkijkend over een riante speelweide, vrijstaande woning met een riante garage (met carport) die via een riante aanbouw inpandig bereikbaar is. De achtertuin van deze verrassend ruime gezinswoning met veranda is gesitueerd op het zuiden, waardoor het heerlijk vertoeven is in de zomer. Op loopafstand van alle dagelijkse voorzieningen, zoals o.a. een supermarkt, de basisschool en een leuke speelweide.
Indeling:
Begane grond: hal met meterkast, een provisiekast, toiletruimte met toilet en fonteintje. Een ruime en lichte L-vormige woonkamer met aan de voorzijde uitzicht over een speelweide, een dichte woonkeuken en een praktische bijkeuken met…
Centraal in het dorp gelegen, uitkijkend over een riante speelweide, vrijstaande woning met een riante garage (met carport) die via een riante aanbouw inpandig bereikbaar is. De achtertuin van deze verrassend ruime gezinswoning met veranda is gesitueerd op het zuiden, waardoor het heerlijk vertoeven is in de zomer. Op loopafstand van alle dagelijkse voorzieningen, zoals o.a. een supermarkt, de basisschool en een leuke speelweide.
Indeling:
Begane grond: hal met meterkast, een provisiekast, toiletruimte met toilet en fonteintje. Een ruime en lichte L-vormige woonkamer met aan de voorzijde uitzicht over een speelweide, een dichte woonkeuken en een praktische bijkeuken met aansluitingen t.b.v. de wasapparatuur, deze biedt toegang via de aangebouwde extra berging tot de inpandige garage met carport.
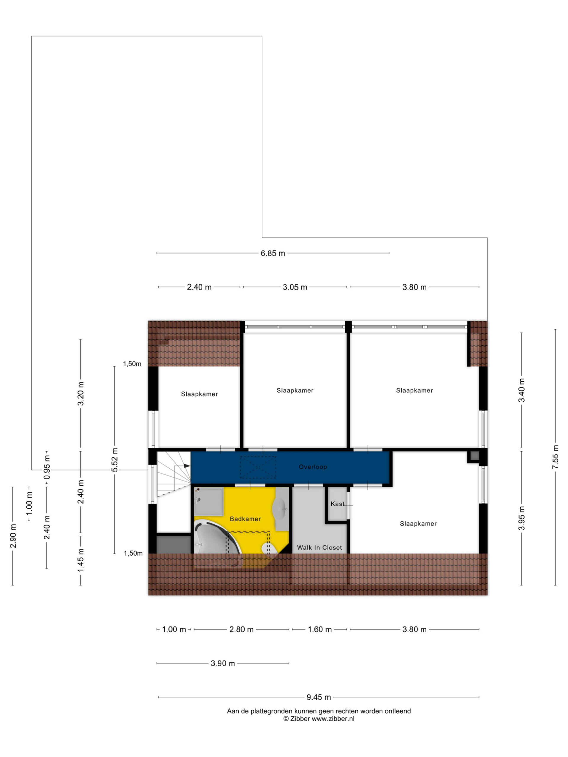
1e verdieping: overloop, 4 ruime slaapkamers, waarvan er 2 vergroot worden door een riante dakkapel aan de achterzijde, badkamer voorzien van een ligbad, douchecabine, wandcloset en wastafel met badmeubel.
2e verdieping: via een vlizotrap bereikbare zolderberging.
Diverse gegevens:
De keukeninrichting bestaat uit een keramische kookplaat, afzuigkap, koelkast en spoelbak.
De woning is voorzien van kunststof kozijnen met dubbele beglazing en grotendeels met rolluiken.
Zeer ruime dakkapel aan de achterzijde.
Praktische aangebouwde berging, die voor meerdere doeleinden te gebruiken is en waarbij de garage inpandig bereikbaar is.
Verzorgd aangelegde achtertuin met een perfecte zonligging.
Een uitstekende ligging met op loopafstand de basisschool en supermarkt. Het natuurgebied "De Maasheggen" ligt eveneens op een mooie loopafstand.
Toon meer
Toon minder