Ben je op zoek naar een ruime eengezinswoning? Maak dan een afspraak voor een bezichtiging! Deze tussenwoning ligt in een rustige, autoluwe straat in de woonwijk "De Heeswijkse Kampen", heeft een ruime tuin met een vrijstaande berging en achterom en is gelegen op korte loopafstand van de basisschool met kinderopvang, enkele speelveldjes, wijkpark en recreatieplassen.
Indeling:
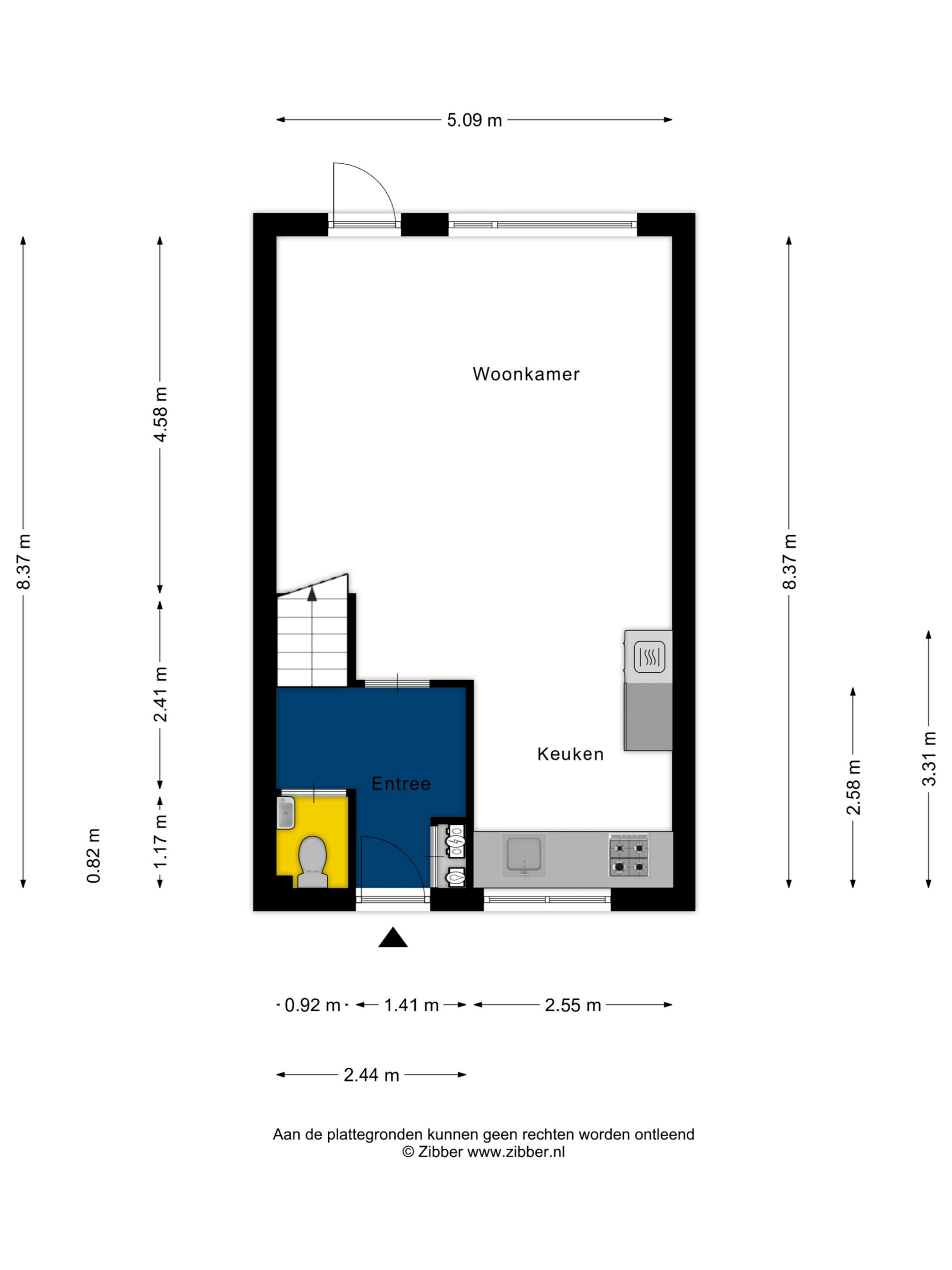
Begane grond: hal met meterkast en toilet met fonteintje. Aan de achterzijde gesitueerde en ruime woonkamer met een nieuwe pvc visgraatvloer en met toegang tot de privacybiedende achtertuin, de moderne open keuken is voorzien van alle benodigde inbouwapparatuur.
1e verdieping: overloop, 3…
Ben je op zoek naar een ruime eengezinswoning? Maak dan een afspraak voor een bezichtiging! Deze tussenwoning ligt in een rustige, autoluwe straat in de woonwijk "De Heeswijkse Kampen", heeft een ruime tuin met een vrijstaande berging en achterom en is gelegen op korte loopafstand van de basisschool met kinderopvang, enkele speelveldjes, wijkpark en recreatieplassen.
Indeling:
Begane grond: hal met meterkast en toilet met fonteintje. Aan de achterzijde gesitueerde en ruime woonkamer met een nieuwe pvc visgraatvloer en met toegang tot de privacybiedende achtertuin, de moderne open keuken is voorzien van alle benodigde inbouwapparatuur.
1e verdieping: overloop, 3 slaapkamers, badkamer voorzien van een zwevend toilet, vaste wastafel met meubel en inloopdouche.
2e verdieping: via een vaste trap bereikbare zolderverdieping, voorzien van de aansluitingen t.b.v. de wasapparatuur, de cv-installatie en op relatief eenvoudige wijze is er een 4e slaapkamer te realiseren.
Diverse gegevens:
De moderne keukenopstelling is voorzien van een gaskookplaat met afzuigkap, oven, koel-/ vriescombinatie en een vaatwasser.
De cv-ketel is van het merk Nefit, bouwjaar 2008. In 2024 is er op de zolder een airco geplaatst die zowel kan verwarmen als koelen.
De woning is voorzien van dak-, muur- en vloerisolatie en geïsoleerd glas. De voordeur is in 2025 vervangen.
De basisschool met kinderopvang, de supermarkt en de Lavendelkade zijn op loopafstand gelegen.
De snelfietsroute naar Nijmegen is uitstekend bereikbaar, evenals het NS-station en de autosnelweg A73 richting Nijmegen-Venlo.
Belangrijkste vaste lasten:
(volgens opgave huidige gebruiker)
Onroerendezaakbelasting: € 317,23 per jaar
Rioolrecht: € 262,44 per jaar
Afvalstoffenheffing: € 261,00 per jaar
Waterschapslasten: € 356,00 per jaar
Toon meer
Toon minder