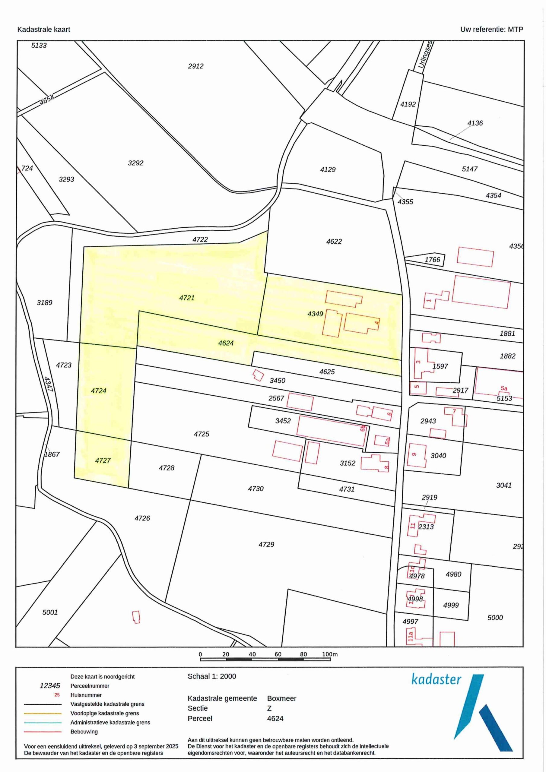
Op een unieke plek aan de rand van het dorp Oeffelt, in een landelijke woonomgeving, prachtig gelegen vrijstaande woonboerderij met 2 royale (multifunctionele) bijgebouwen, een boomgaard, verschillende weides en een fraaie tuin met beschut terras. Het totale perceel is maar liefst 22.910 m² groot en ideaal geschikt voor paardenliefhebbers. Er zijn 2 bijgebouwen aanwezig, waarvan er één dient als stal met werkplaats en/ of bergruimte en het andere bijgebouw heeft multifunctionele gebruikersdoeleinden en beschikt over verschillende ruimtes, waaronder een douche/ toilet, royale hobbyruimte met een keukenblok en een stalruimte met toilet.
De achterzijde biedt een uitgestrekt uitzicht over de…
Op een unieke plek aan de rand van het dorp Oeffelt, in een landelijke woonomgeving, prachtig gelegen vrijstaande woonboerderij met 2 royale (multifunctionele) bijgebouwen, een boomgaard, verschillende weides en een fraaie tuin met beschut terras. Het totale perceel is maar liefst 22.910 m² groot en ideaal geschikt voor paardenliefhebbers. Er zijn 2 bijgebouwen aanwezig, waarvan er één dient als stal met werkplaats en/ of bergruimte en het andere bijgebouw heeft multifunctionele gebruikersdoeleinden en beschikt over verschillende ruimtes, waaronder een douche/ toilet, royale hobbyruimte met een keukenblok en een stalruimte met toilet.
De achterzijde biedt een uitgestrekt uitzicht over de weide, richting het dorp Oeffelt en de kerktoren en de achtertuin biedt optimale privacy. Gelegen op korte afstand van diverse voorzieningen, een basisschool en het perceel grenst direct aan het unieke (UNESCO) natuurgebied "De Maasheggen" met vele wandel-/ en fietsroutes.
Indeling:
Entree/ hal, toegang tot de kelder. Een aan de voorzijde gelegen slaap-/ werkkamer. De woonkamer met veel lichtinval met toegang tot een extra werkkamer/ kantoor. Verder een gezellige woonkeuken met keuken in hoekopstelling en inbouwapparatuur, deze ruimte biedt middels openslaande tuindeuren toegang tot het terras, een riante bijkeuken met witgoedaansluitingen en toiletruimte, toegang tot het achterste gedeelte van de woning bestaande uit verschillende bergruimtes en hobbyruimtes en 2e trapopgang naar de 1e verdieping.
1e verdieping: overloop met cv-kast, 2 ruim bemeten slaapkamers aan de voorzijde en een 3e slaapkamer met een slaapvide. De ruime badkamer is voorzien van ligbad, toilet, douche en dubbele wastafel. Een overloop met royale master-bedroom voorzien van 2 dakramen en bergkast en met toegang tot de bergzolder en toegang tot de hobbykamer/ berging aan de achterzijde.
Bijgebouw 1:
Bijgebouw bestaande uit verschillende ruimtes waaronder: multifunctionele ruimte die ingericht kan worden voor meerdere gebruikersdoeleinden zoals b.v. bijwoning of mantelzorgwoning met keukenblok, voorzien van koelkast, vaatwasser en spoelbak. Een aparte douche en toiletruimte en aan de achterzijde een stalruimte met toilet.
Deze ruimte beschikt over een aparte cv-ketel.
Bijgebouw 2:
Voormalige koeien- en varkensstal, een praktische werkplaats en bergruimte.
Bijzonderheden:
Een zeer compleet ingerichte keuken met o.a. een 5-pits gaskookplaat, afzuigkap, vaatwasser (2025) en oven (2025).
De woonboerderij beschikt over dubbel glas en dakisolatie, eveneens op bijgebouw I en over 30 zonnepanelen.
De cv-ketel is van het merk Remeha, bouwjaar 2008.
Het object heeft de bestemming wonen en agrarisch bestemde weides.
Op korte loopafstand van de dorpsvoorzieningen en het fraaie buitengebied "De Maasheggen".
De A73 is op enkele autominuten gelegen met de toerit naar Nijmegen - Venlo.
Toon meer
Toon minder